Byty na Hornej
Byty na Hornej - map
Oficiálna stránka projektu
byt
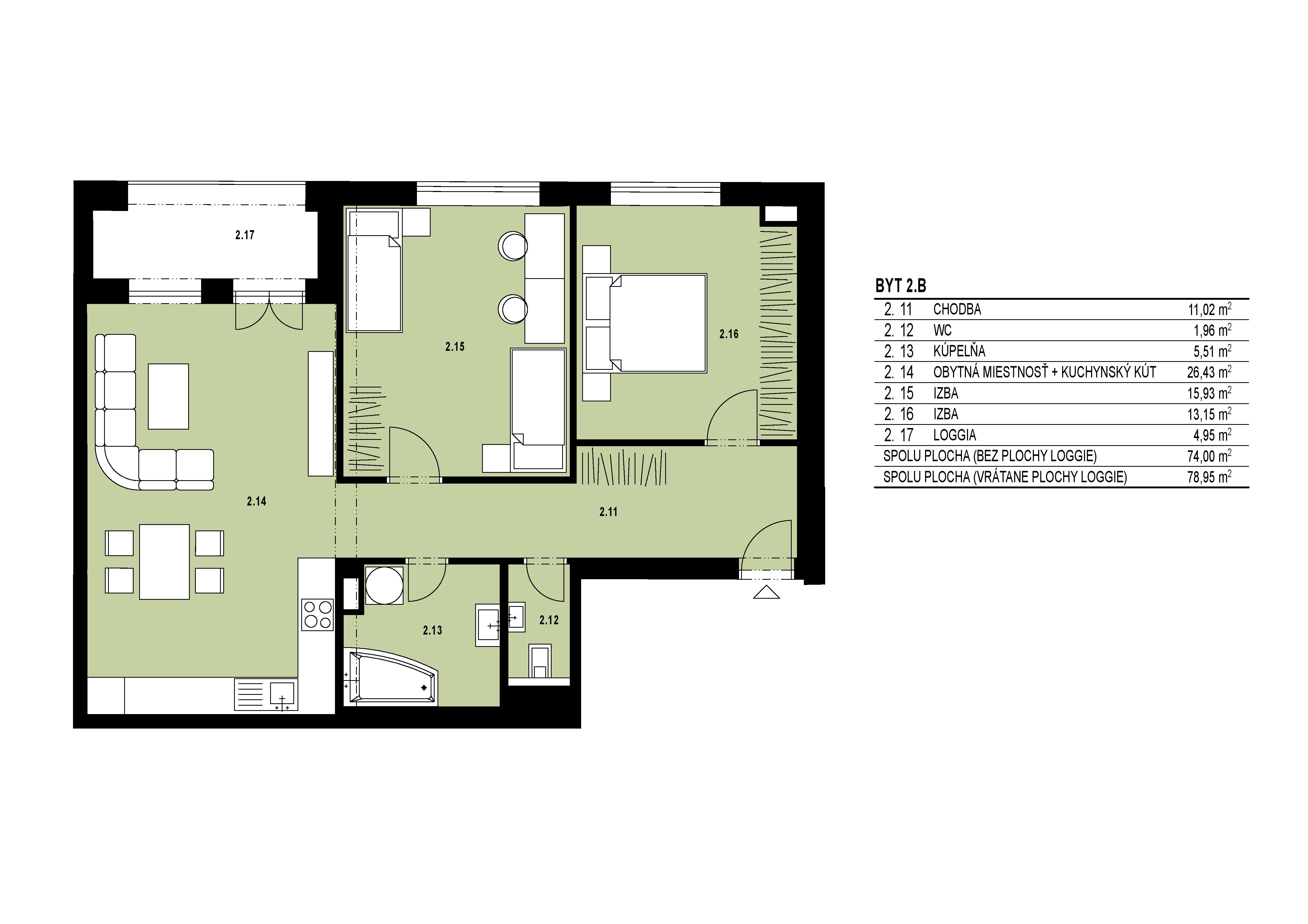
2.B
budova
-
projekt
mesto / obec
typ
3-izbový byt
poschodie
2.NP
interiér
78.NP
-
voľný