Byty na Hornej
Byty na Hornej - map
Oficiálna stránka projektu
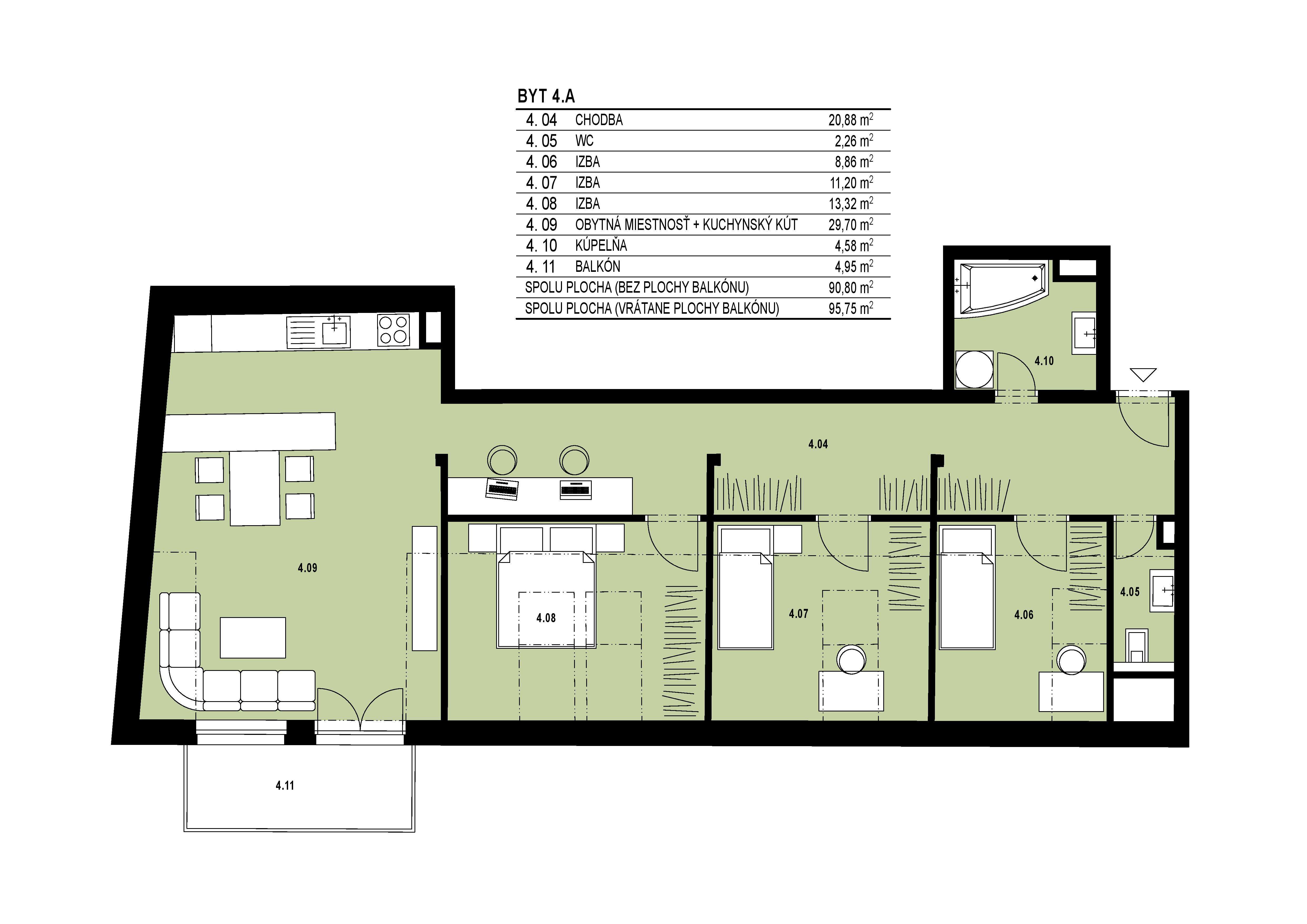
byt
4.A
budova
-
projekt
mesto / obec
typ
4-izbový byt
poschodie
4.NP
interiér
95.NP
-
voľný