flatscraper - logo
Danubius
Danubius - map
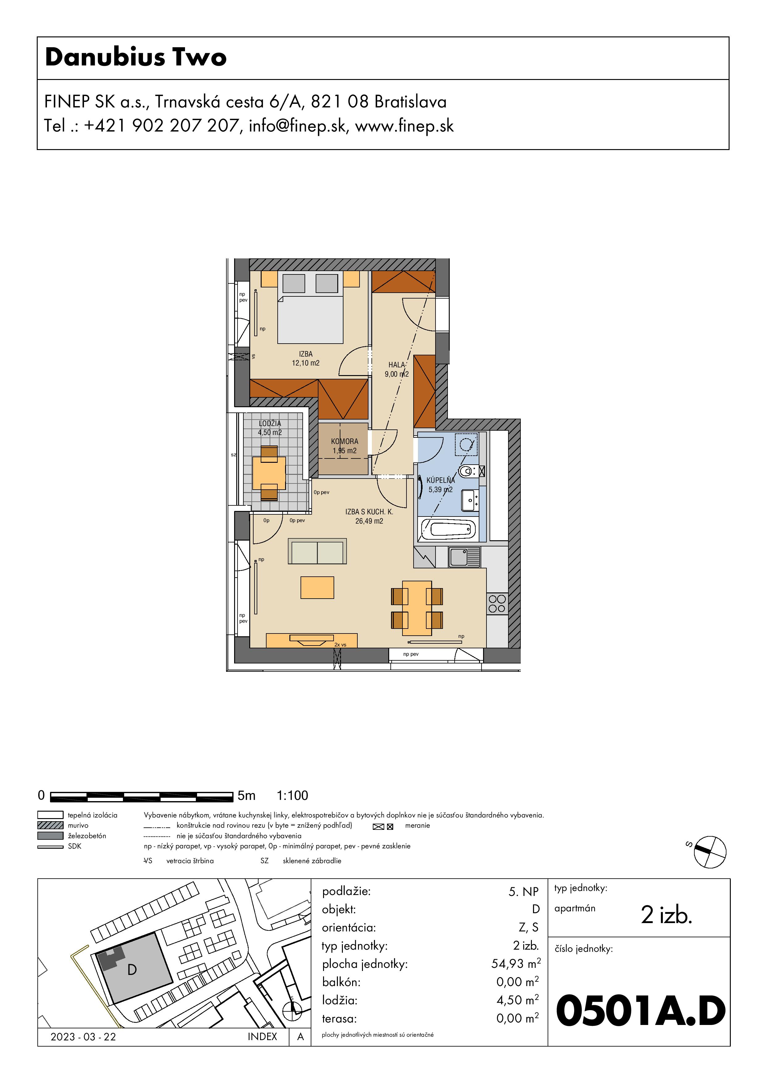
byt:
Budova:
Danubius Two
Projekt:
Mesto / Obec:
Typ:
2-izbový byt
Poschodie:
5.NP
Rozloha:
54.9 m²
Lodžia:
4.5 m²
Cena:
291 066 €
Dostupnosť:
voľný
Moja Nehnuteľnosť
Profesionálna kalkulačka pre investície do nehnuteľností
Kontakt:
Danubius - 0501A.D - Pôdorys
zdroj: https://www.finep.sk/sk/danubius-two/apartman-0501a-d?backlink=601e37ab