flatscraper - logo
Danubius
Danubius - map
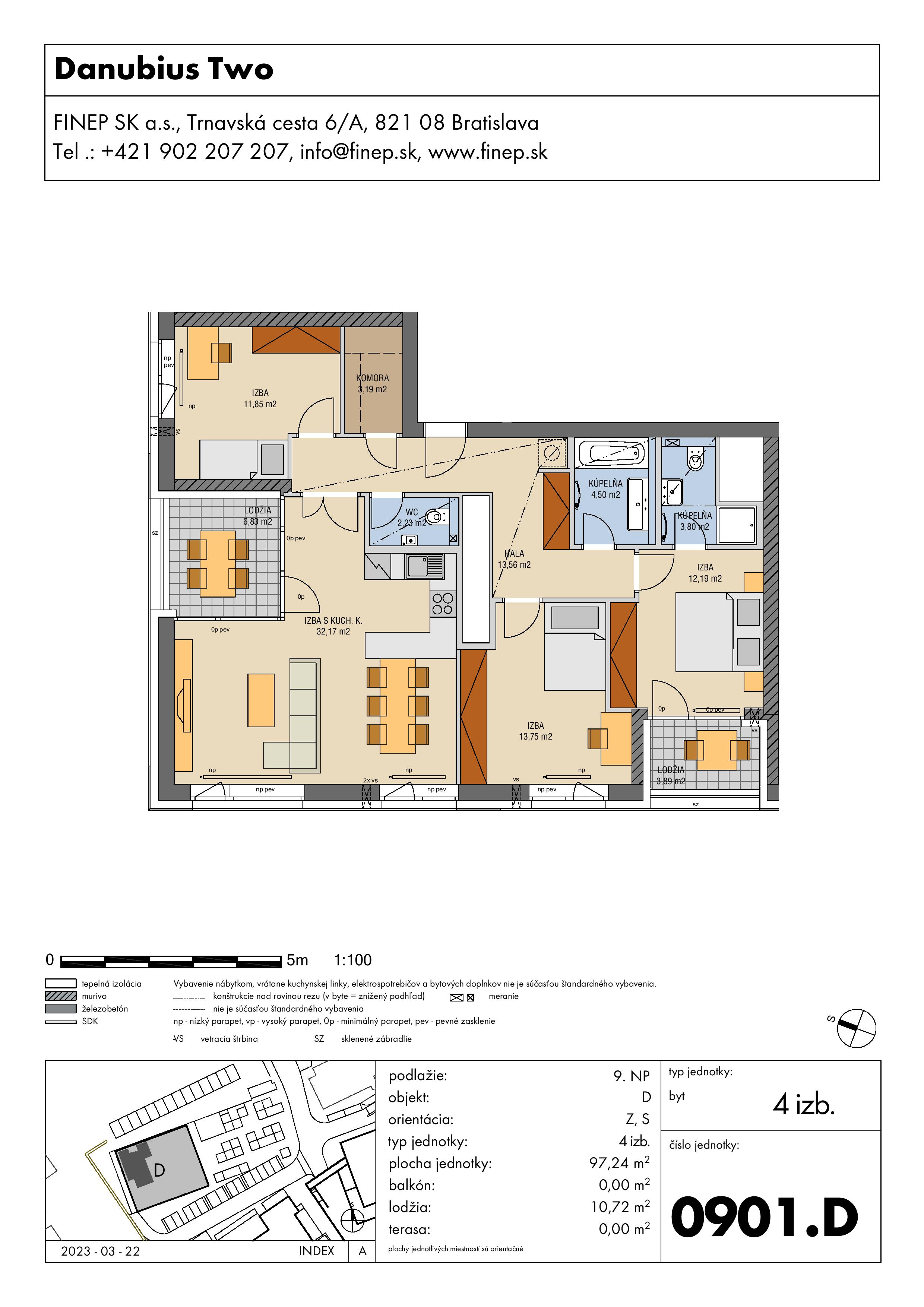
byt:
Budova:
Danubius Two
Projekt:
Mesto / Obec:
Typ:
4-izbový byt
Poschodie:
9.NP
Rozloha:
97.2 m²
Lodžia:
10.7 m²
Cena:
609 552 €
Dostupnosť:
voľný
Kontakt:
Danubius - 0901.D - Pôdorys
zdroj: https://www.finep.sk/sk/danubius-two/byt-0901-d?backlink=a0630792