flatscraper - logo
Danubius
Danubius - map
byt:
Budova:
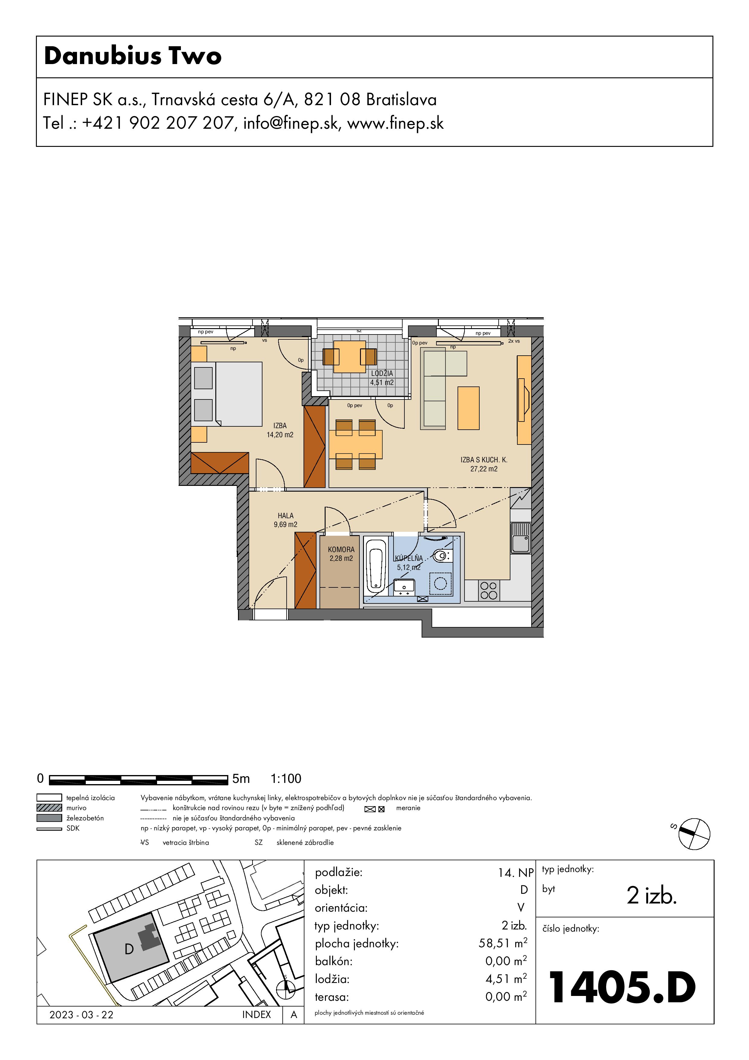
Danubius Two
Projekt:
Mesto / Obec:
Typ:
2-izbový byt
Poschodie:
14.NP
Rozloha:
58.5 m²
Lodžia:
4.5 m²
Cena:
328 015 €
Dostupnosť:
voľný
Moja Nehnuteľnosť
Profesionálna kalkulačka pre investície do nehnuteľností
Kontakt:
Danubius - 1405.D - Pôdorys
zdroj: https://www.finep.sk/sk/danubius-two/byt-1405-d?backlink=a095d67e