flatscraper - logo
Danubius
Danubius - map
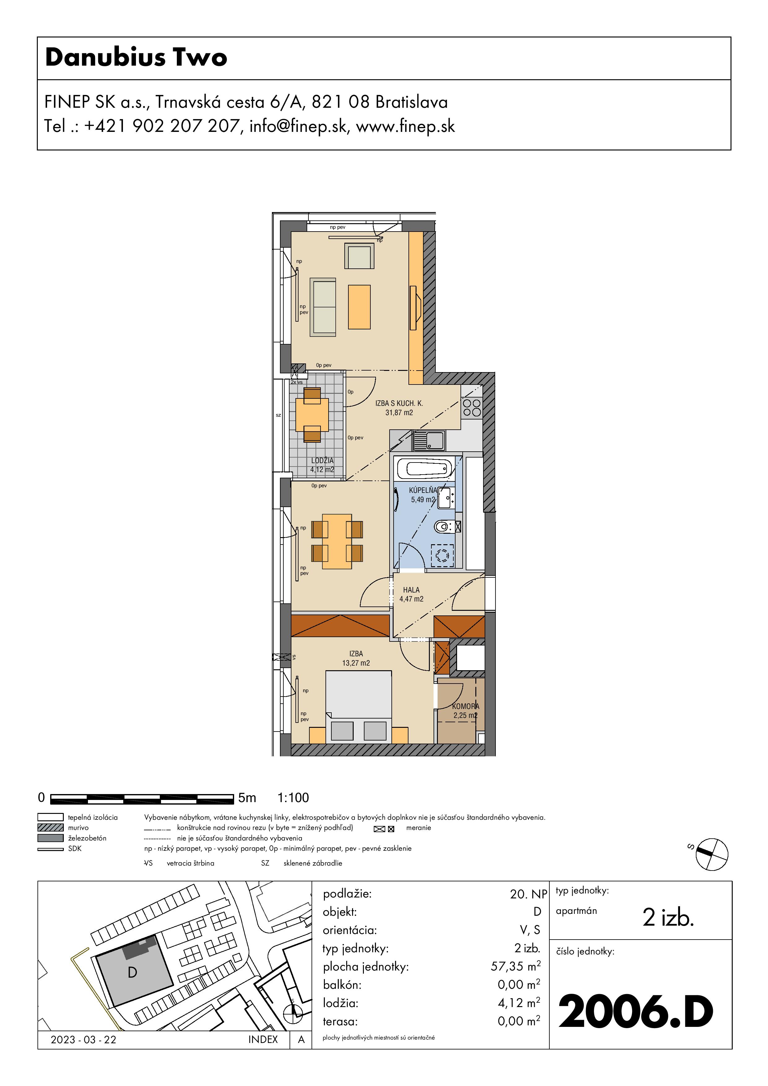
byt:
Budova:
Danubius Two
Projekt:
Mesto / Obec:
Typ:
2-izbový byt
Poschodie:
20.NP
Rozloha:
57.4 m²
Lodžia:
4.1 m²
Cena:
356 815 €
Dostupnosť:
voľný
Moja Nehnuteľnosť
Profesionálna kalkulačka pre investície do nehnuteľností
Kontakt:
Danubius - 2006.D - Pôdorys
zdroj: https://www.finep.sk/sk/danubius-two/byt-2006-d?backlink=0e0e99f4