flatscraper - logo
Danubius
Danubius - map
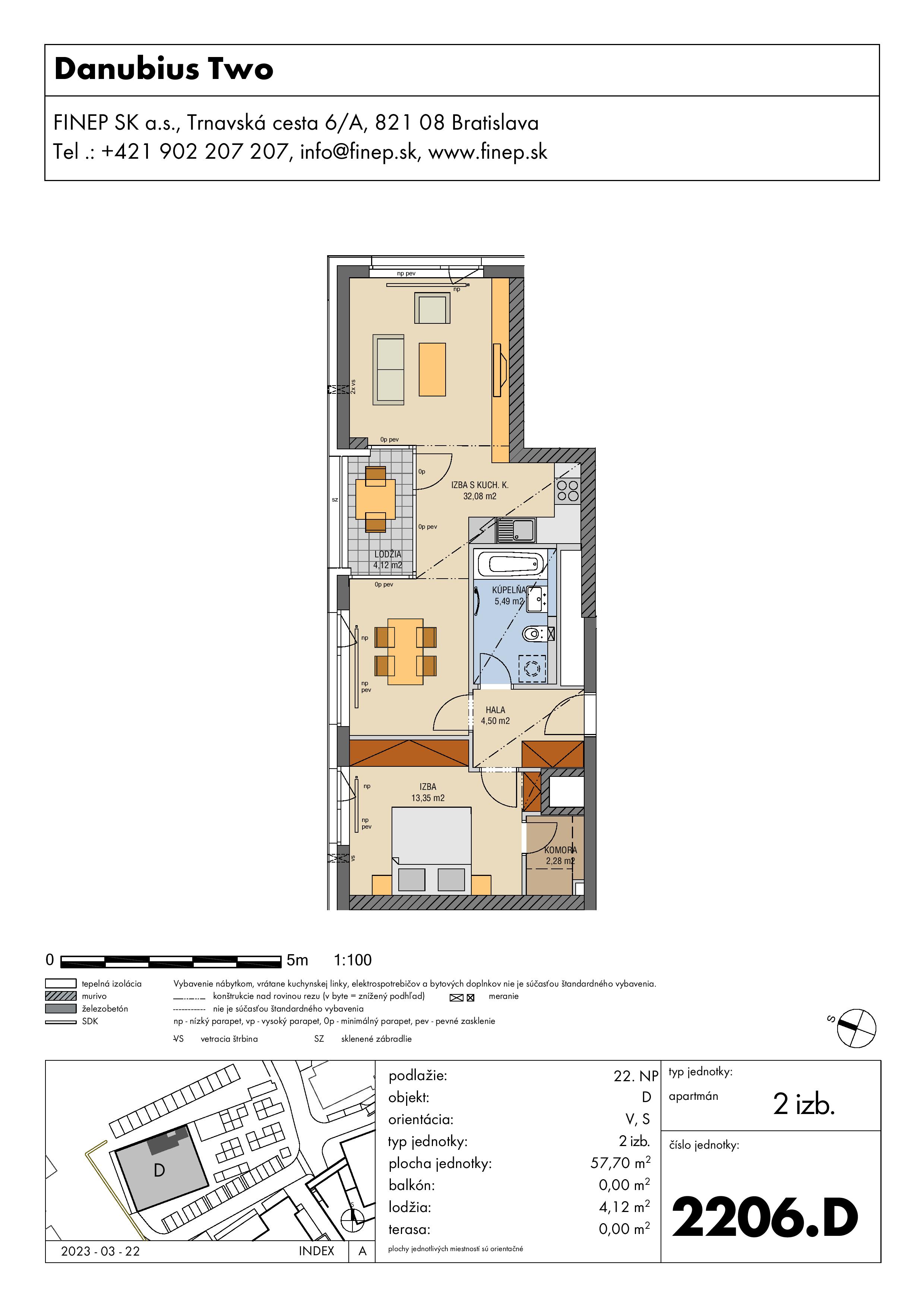
byt:
Budova:
Danubius Two
Projekt:
Mesto / Obec:
Typ:
2-izbový byt
Poschodie:
22.NP
Rozloha:
57.7 m²
Lodžia:
4.1 m²
Cena:
365 039 €
Dostupnosť:
voľný
Kontakt:
Danubius - 2206.D - Pôdorys
zdroj: https://www.finep.sk/sk/danubius-two/byt-2206-d?backlink=96e2c090