flatscraper - logo
Danubius
Danubius - map
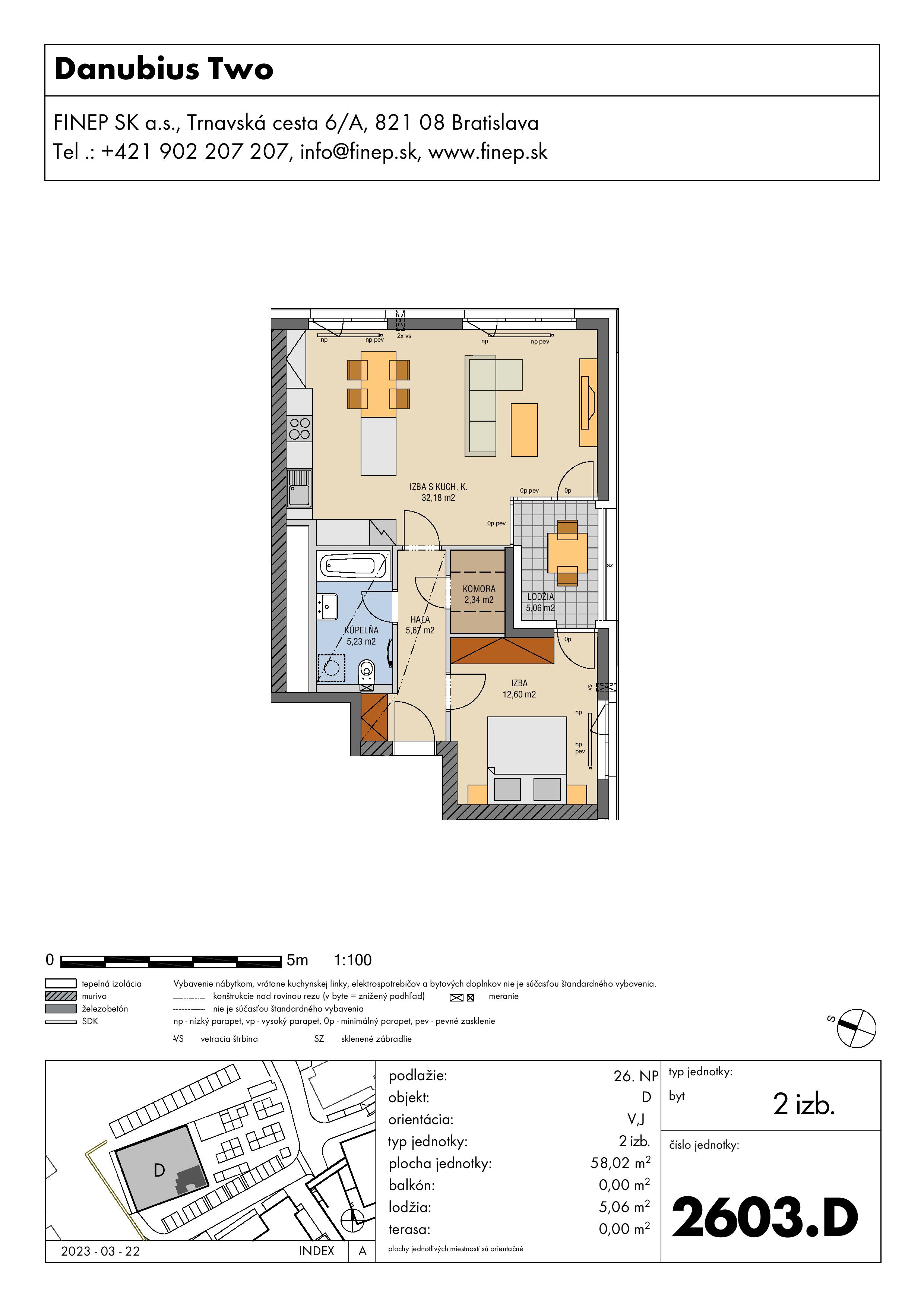
byt:
Budova:
Danubius Two
Projekt:
Mesto / Obec:
Typ:
2-izbový byt
Poschodie:
26.NP
Rozloha:
58 m²
Lodžia:
5.1 m²
Cena:
390 915 €
Dostupnosť:
voľný
Kontakt:
Danubius - 2603.D - Pôdorys
zdroj: https://www.finep.sk/sk/danubius-two/byt-2603-d?backlink=f5c98753