flatscraper - logo
Green Atrium
Green Atrium - map
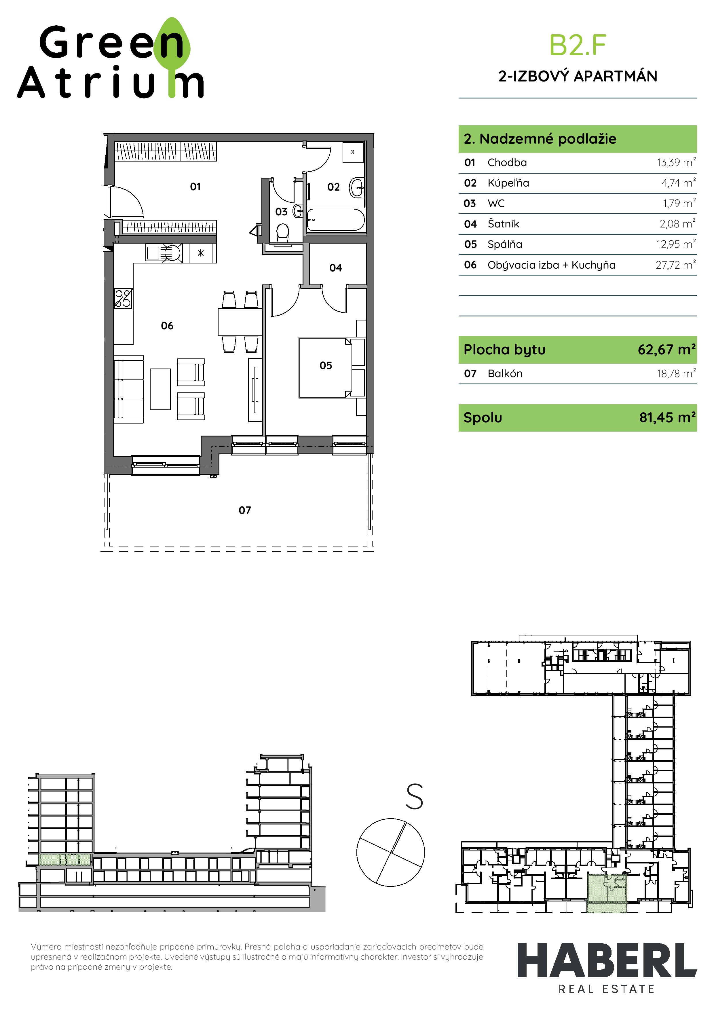
byt:
2F
Budova:
B
Projekt:
Mesto / Obec:
Typ:
2-izbový byt
Poschodie:
2.NP
Rozloha:
62.67 m²
Exteriér:
18.78 m²
Cena:
361 500 €
Dostupnosť:
voľný
Moja Nehnuteľnosť
Profesionálna kalkulačka pre investície do nehnuteľností
Green Atrium - 2F - Pôdorys
zdroj: https://www.bytygreenatrium.sk/flat/b2f/