flatscraper - logo
Green Atrium
Green Atrium - map
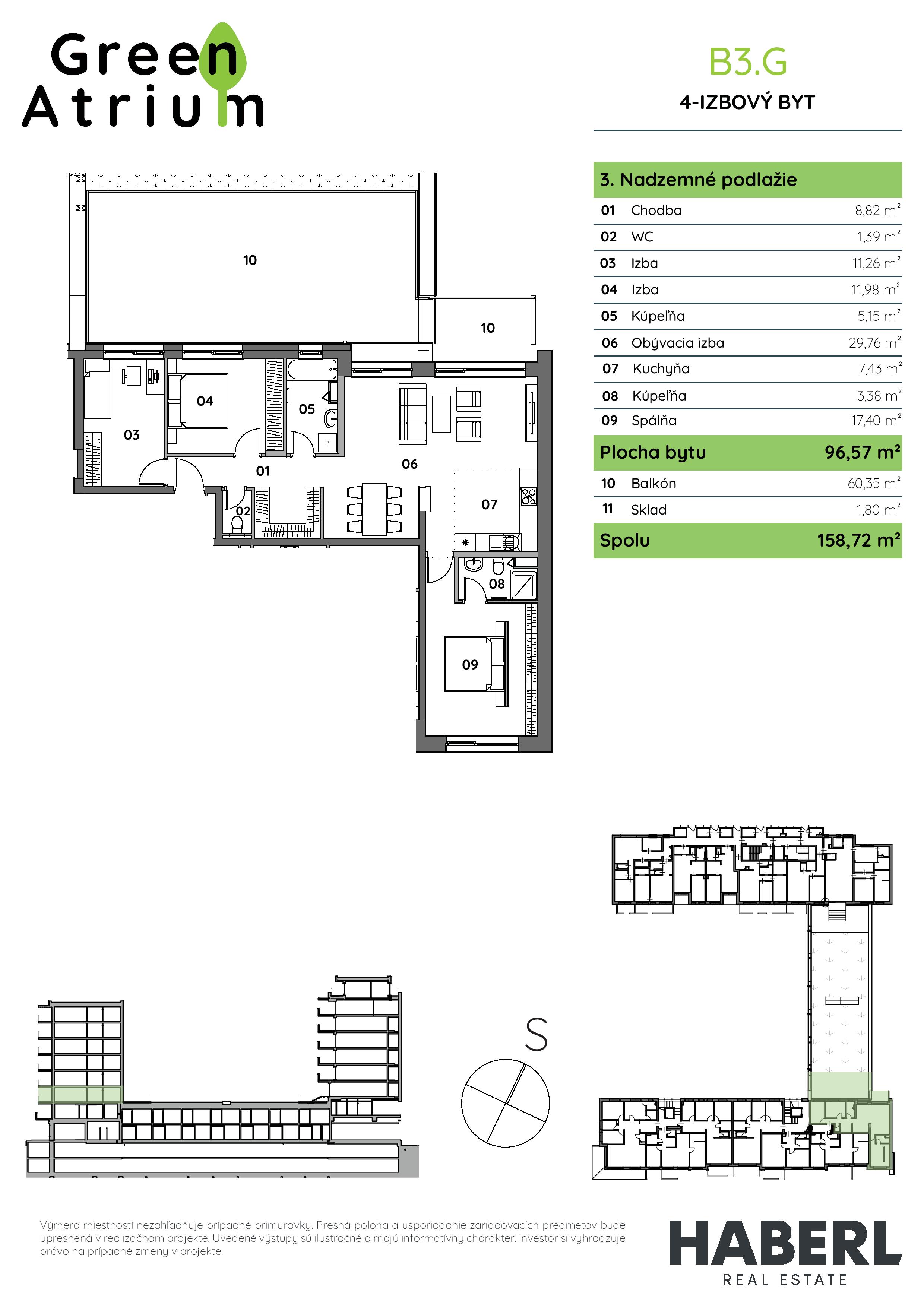
byt:
3G
Budova:
B
Projekt:
Mesto / Obec:
Typ:
4-izbový byt
Poschodie:
3.NP
Rozloha:
96.57 m²
Exteriér:
60.35 m²
Cena:
599 000 €
Dostupnosť:
voľný
Green Atrium - 3G - Pôdorys
zdroj: https://www.bytygreenatrium.sk/flat/b3g/