Green Atrium
Green Atrium - map
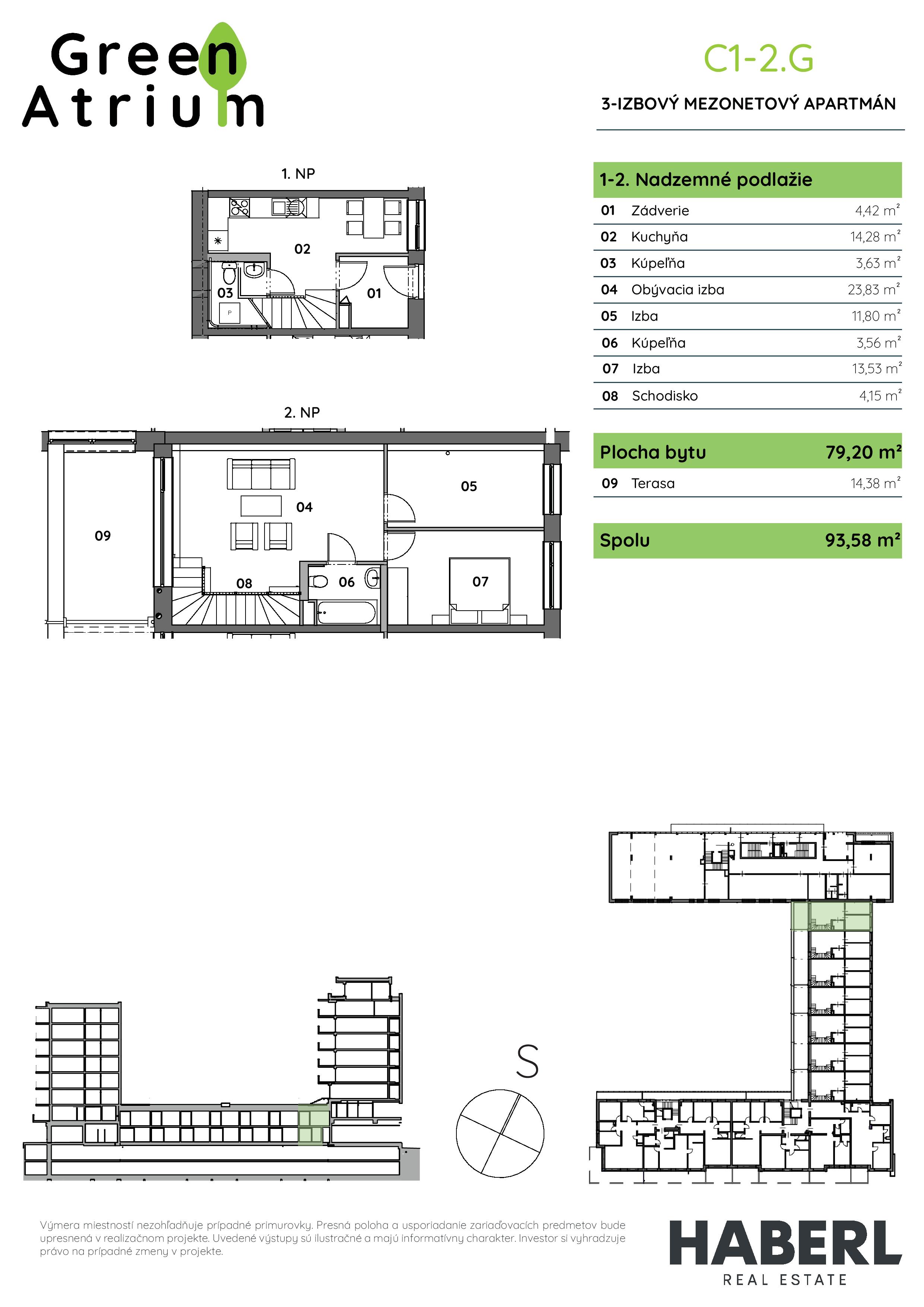
Oficiálna stránka bytu
byt
1-2.G
budova
C
projekt
mesto / obec
typ
3-izbový byt
poschodie
1.NP
interiér
79.NP
exteriér
14.38 m²
-
voľný