flatscraper - logo
Pekná cesta
Pekná cesta - map
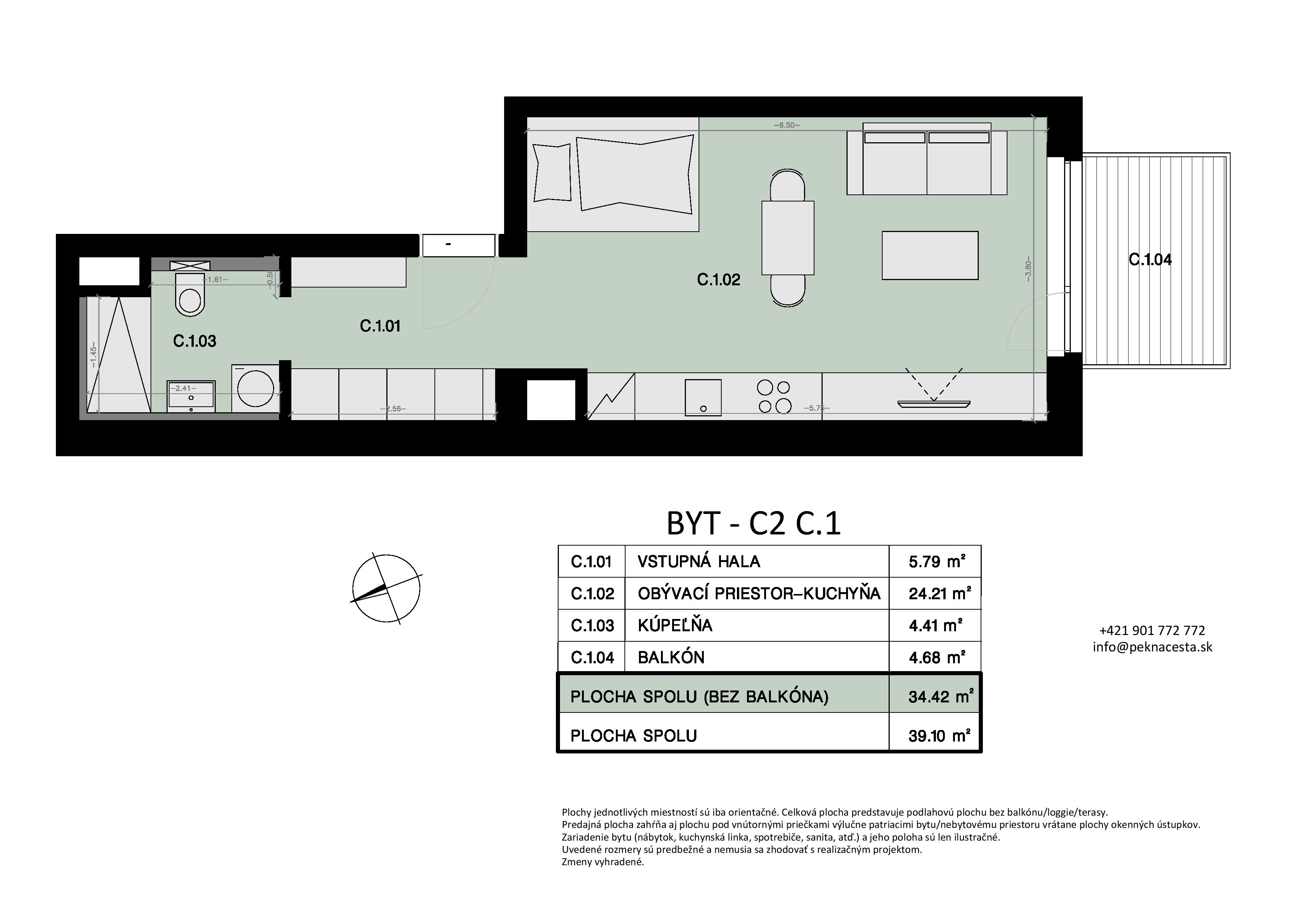
byt:
Budova:
C2
Projekt:
Mesto / Obec:
Typ:
1-izbový byt
Poschodie:
1.NP
Rozloha:
34.42 m²
Balkón:
4.68 m²
Cena:
-
Dostupnosť:
voľný
Moja Nehnuteľnosť
Profesionálna kalkulačka pre investície do nehnuteľností
Pekná cesta - C.1 - Pôdorys
zdroj: https://peknacesta.sk