flatscraper - logo
Portum Towers
Portum Towers - map
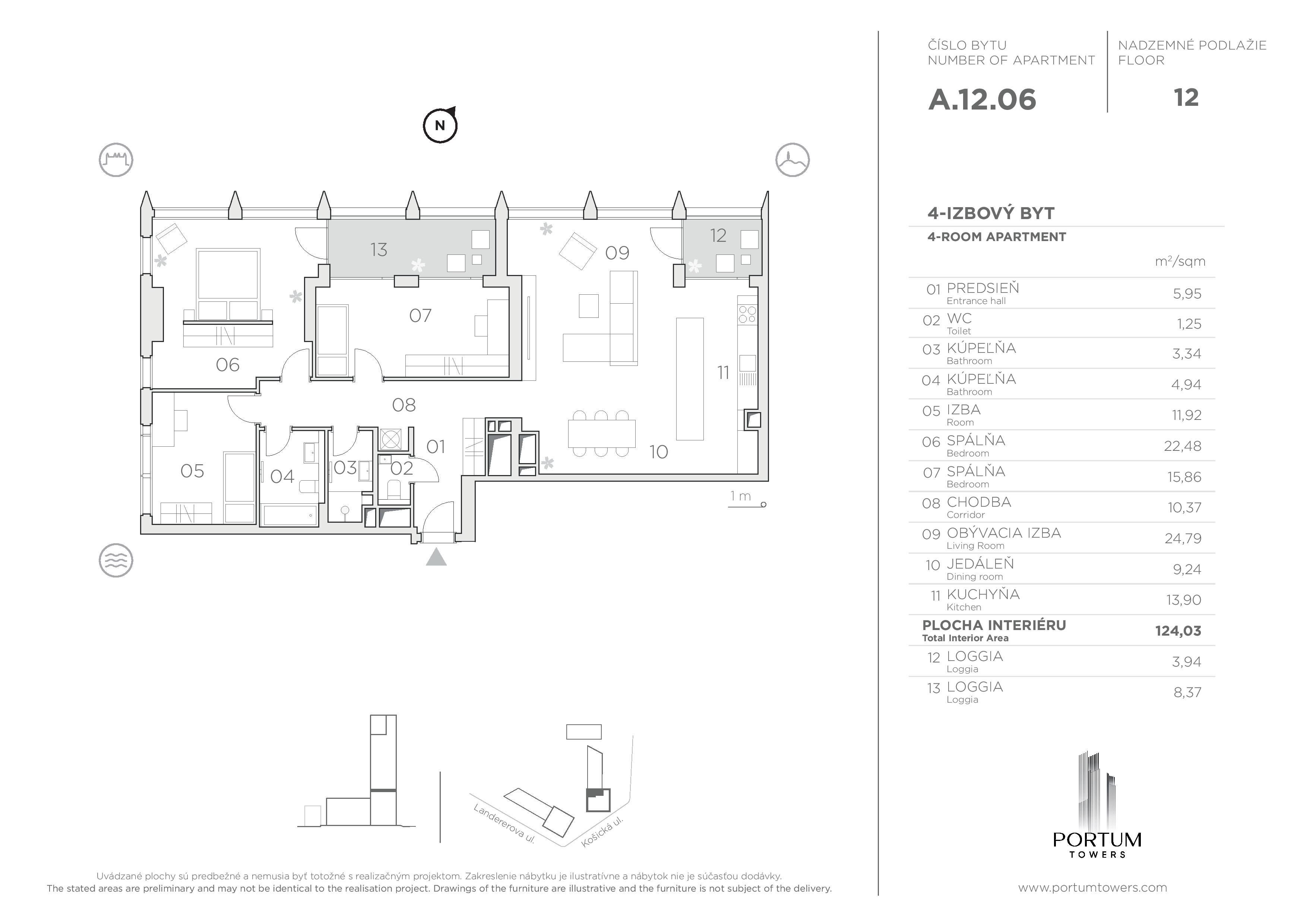
byt:
Projekt:
Mesto / Obec:
Typ:
4-izbový byt
Poschodie:
12.NP
Rozloha:
124.03 m²
Exteriér:
12.31 m²
Cena:
-
Dostupnosť:
voľný
Moja Nehnuteľnosť
Profesionálna kalkulačka pre investície do nehnuteľností
Portum Towers - A.12.06 - Pôdorys
zdroj: https://www.portumtowers.com/flat/A.12.06