flatscraper - logo
Prístavná 1
Prístavná 1 - map
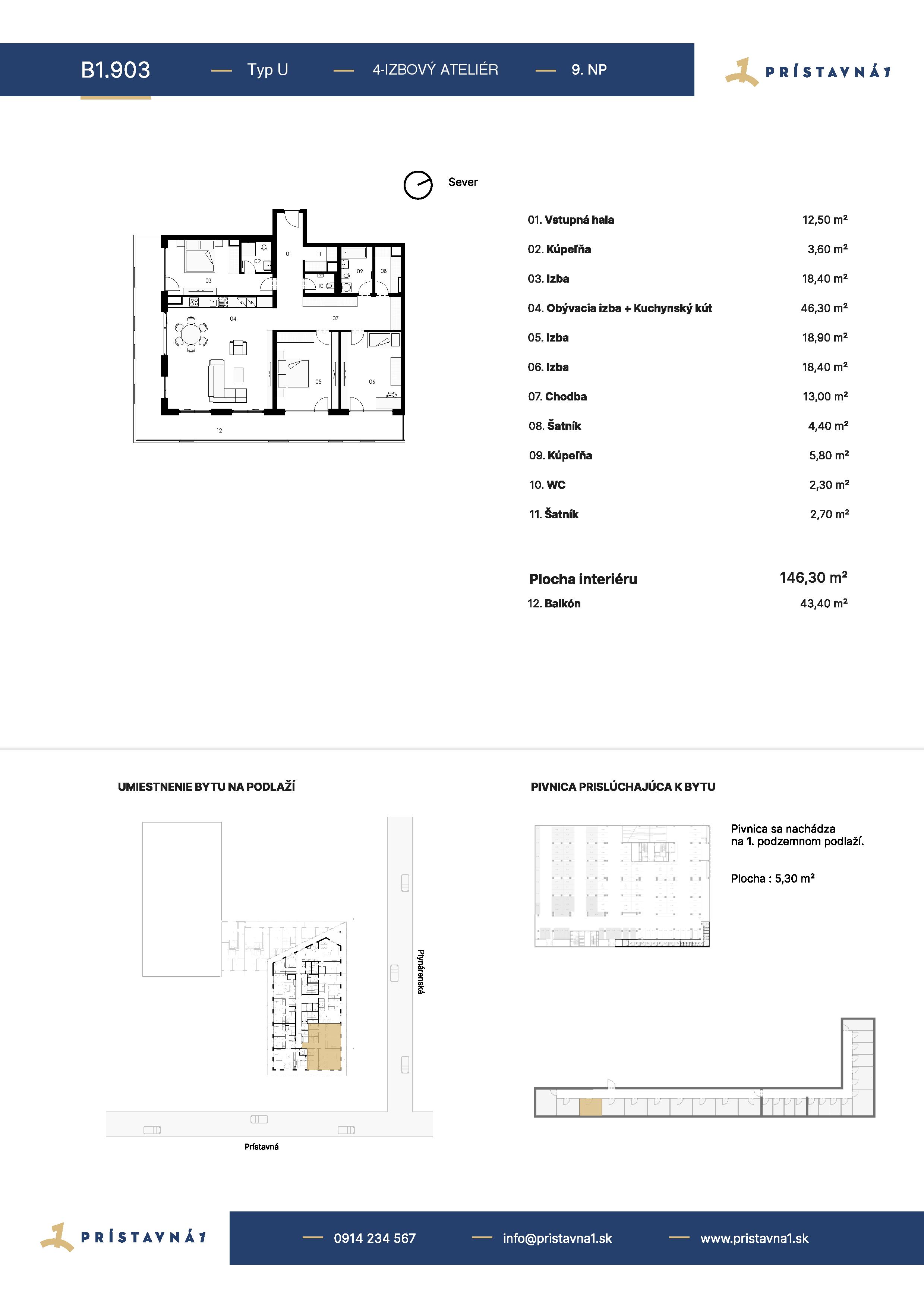
byt:
Projekt:
Mesto / Obec:
Typ:
4-izbový byt
Poschodie:
9.NP
Rozloha:
148.3 m²
Lodžia:
46.3 m²
Cena:
859 900 €
Dostupnosť:
voľný
Moja Nehnuteľnosť
Profesionálna kalkulačka pre investície do nehnuteľností
Prístavná 1 - B1.903 - Pôdorys
zdroj: https://pristavna1.sk/zoznam-bytov/byt/93