Sky Park
Sky Park - map
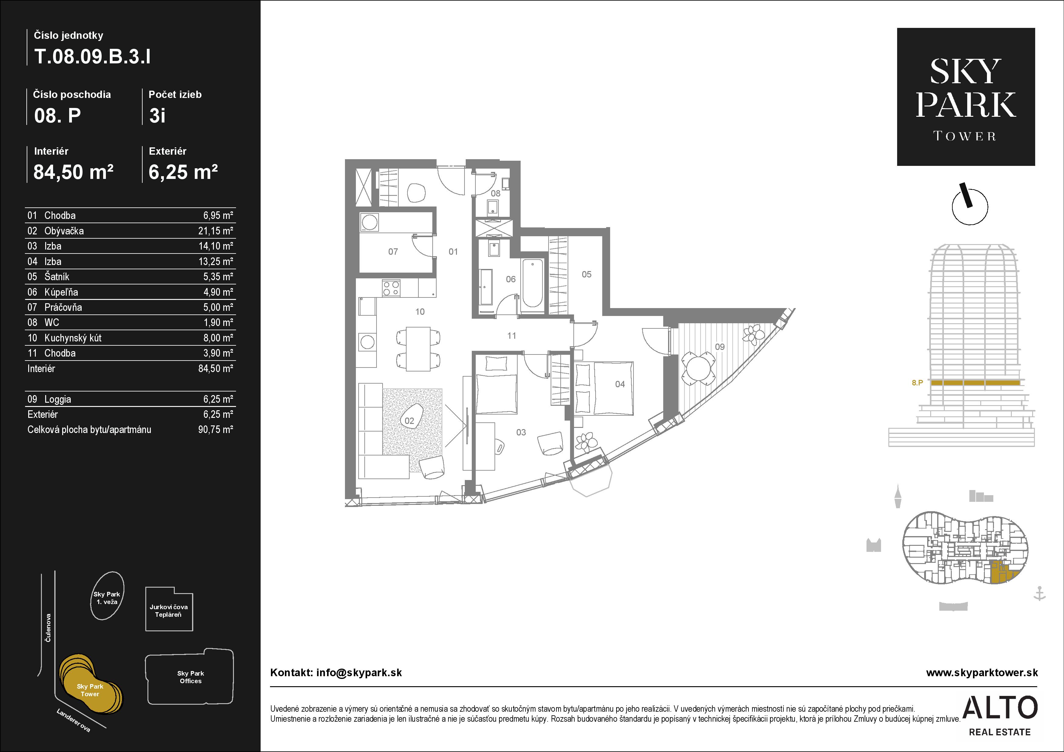
Oficiálna stránka bytu
byt
T.08.09
budova
Sky Park Tower
projekt
mesto / obec
typ
3-izbový byt
poschodie
8.NP
interiér
84.NP
exteriér
6.25 m²
559 900 €
voľný
Vypočítať návratnosť