flatscraper - logo
Sky Park
Sky Park - map
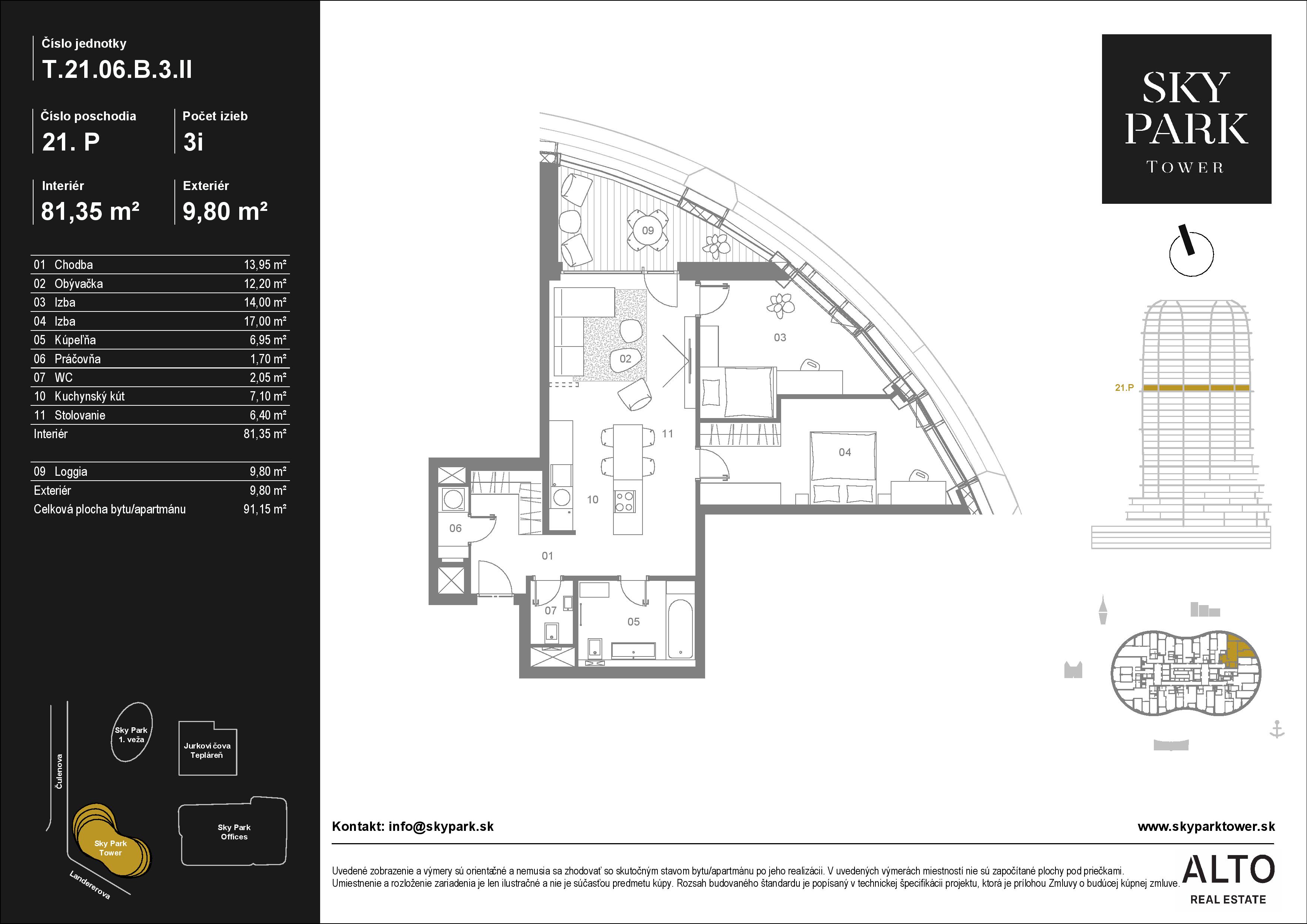
byt:
Budova:
Sky Park Tower
Projekt:
Mesto / Obec:
Typ:
3-izbový byt
Poschodie:
21.NP
Rozloha:
81.35 m²
Exteriér:
9.8 m²
Cena:
674 900 €
Dostupnosť:
voľný
Moja Nehnuteľnosť
Profesionálna kalkulačka pre investície do nehnuteľností
Kontakt:
Sky Park - T.21.06 - Pôdorys
zdroj: https://www.skyparktower.sk/apartment/T.21.06/