Pri Kaplnke
Pri Kaplnke - map
Oficiálna stránka bytu
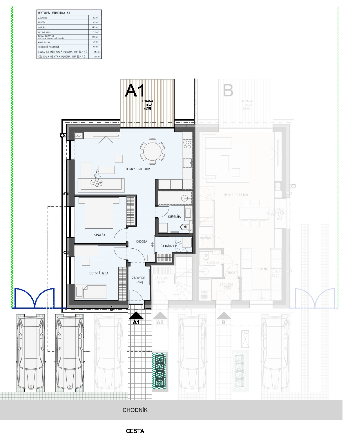
byt
Byt A1
budova
Dom 4
projekt
mesto / obec
typ
3-izbový byt
poschodie
1.NP
interiér
71.NP
predzáhradka
209 m²
249 000 €
voľný
Vypočítať návratnosť