Galanta West
Galanta West - map
Oficiálna stránka bytu
byt
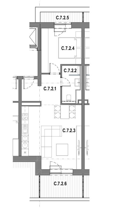
C.7.2
budova
M
projekt
mesto / obec
typ
2-izbový byt
poschodie
7.NP
interiér
61.NP
141 000 €
voľný
Vypočítať návratnosť