Parkhouse
Parkhouse - map
Oficiálna stránka bytu
byt
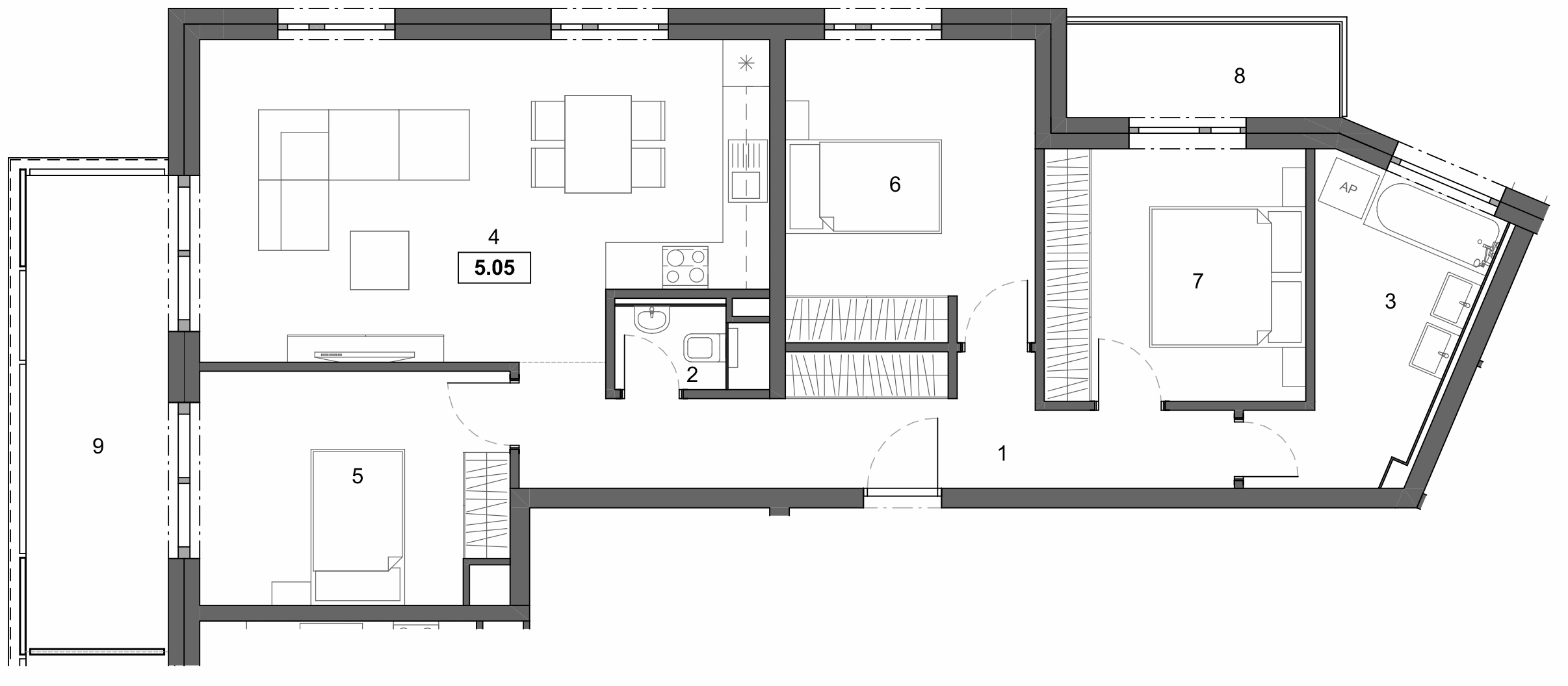
5.05
budova
-
projekt
mesto / obec
typ
4-izbový byt
poschodie
5.NP
interiér
102.NP
-
rezervovaný