Parkhouse
Parkhouse - map
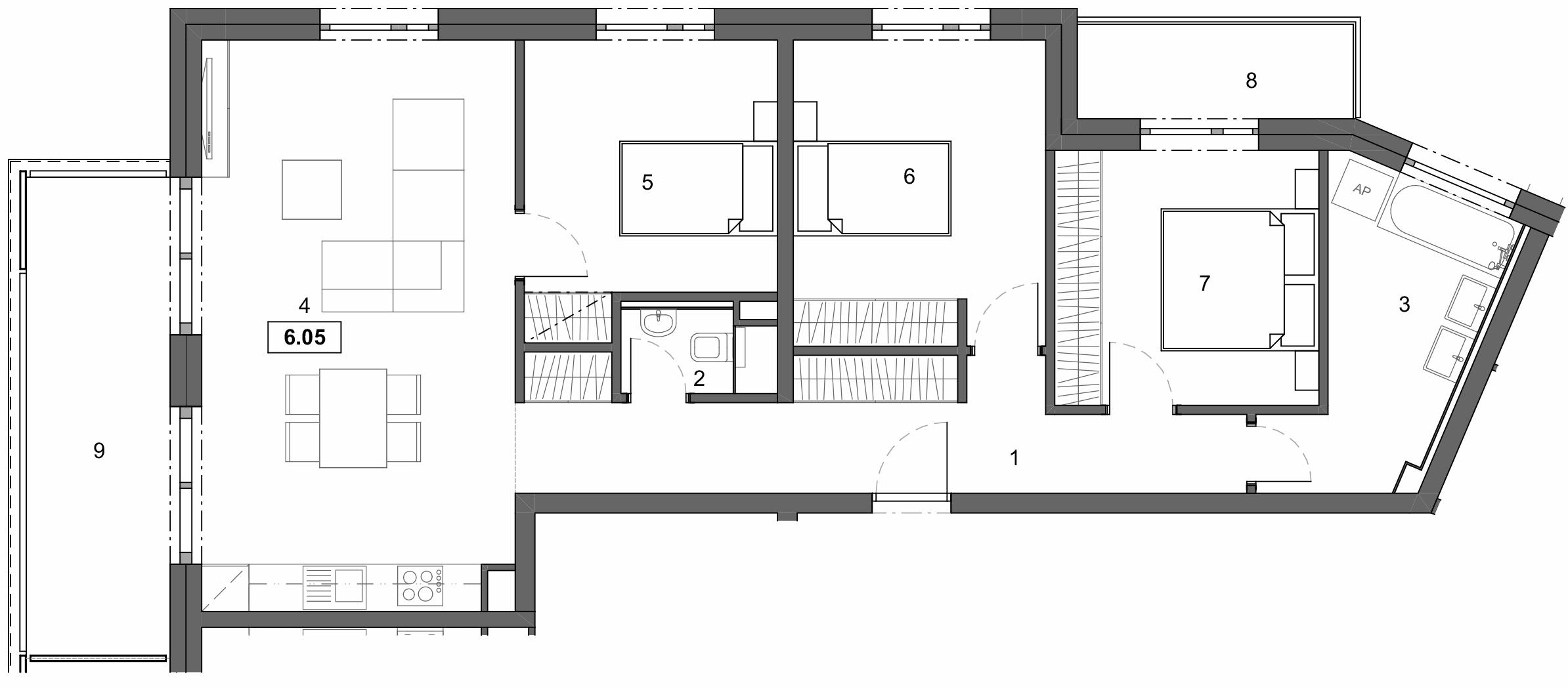
Oficiálna stránka bytu
byt
6.05
budova
-
projekt
mesto / obec
typ
4-izbový byt
poschodie
6.NP
interiér
102.NP
250 000 €
voľný
Vypočítať návratnosť