R Centrum
R Centrum - map
Oficiálna stránka bytu
byt
6
budova
-
projekt
mesto / obec
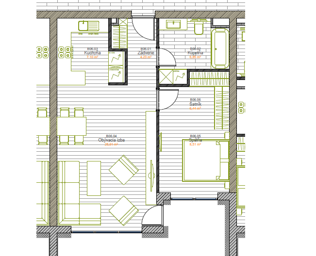
typ
2-izbový byt
poschodie
1.NP
interiér
59.NP
predzáhradka
72 m²
terasa
10.76 m²
147 390 €
voľný
Vypočítať návratnosť