Domino Park
Domino Park - map
Oficiálna stránka bytu
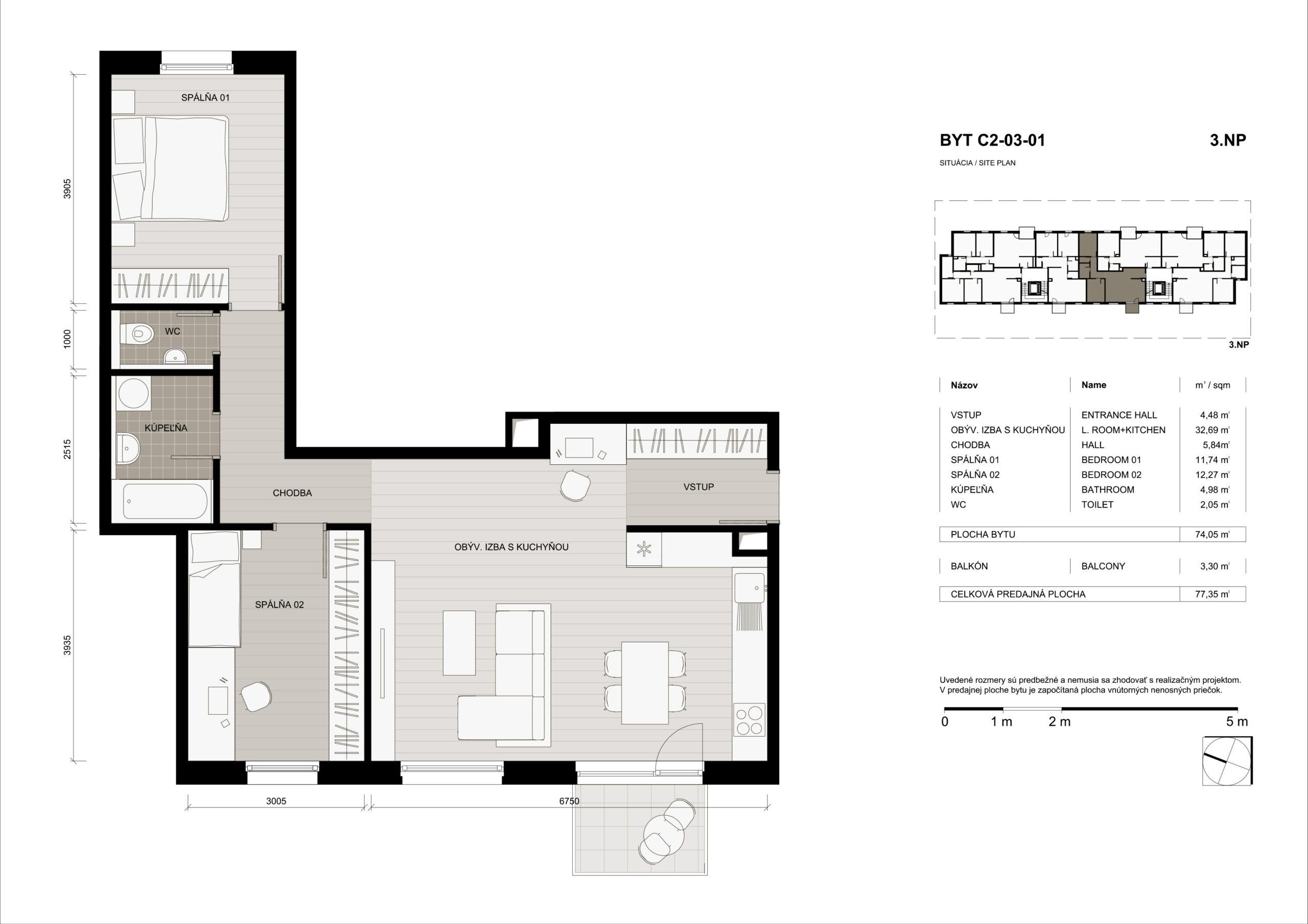
byt
C2-03-01
budova
-
projekt
mesto / obec
typ
3-izbový byt
poschodie
3.NP
interiér
74.NP
exteriér
3.3 m²
300 900 €
voľný
Vypočítať návratnosť