flatscraper - logo
Rezidencia Čížik
Rezidencia Čížik - map
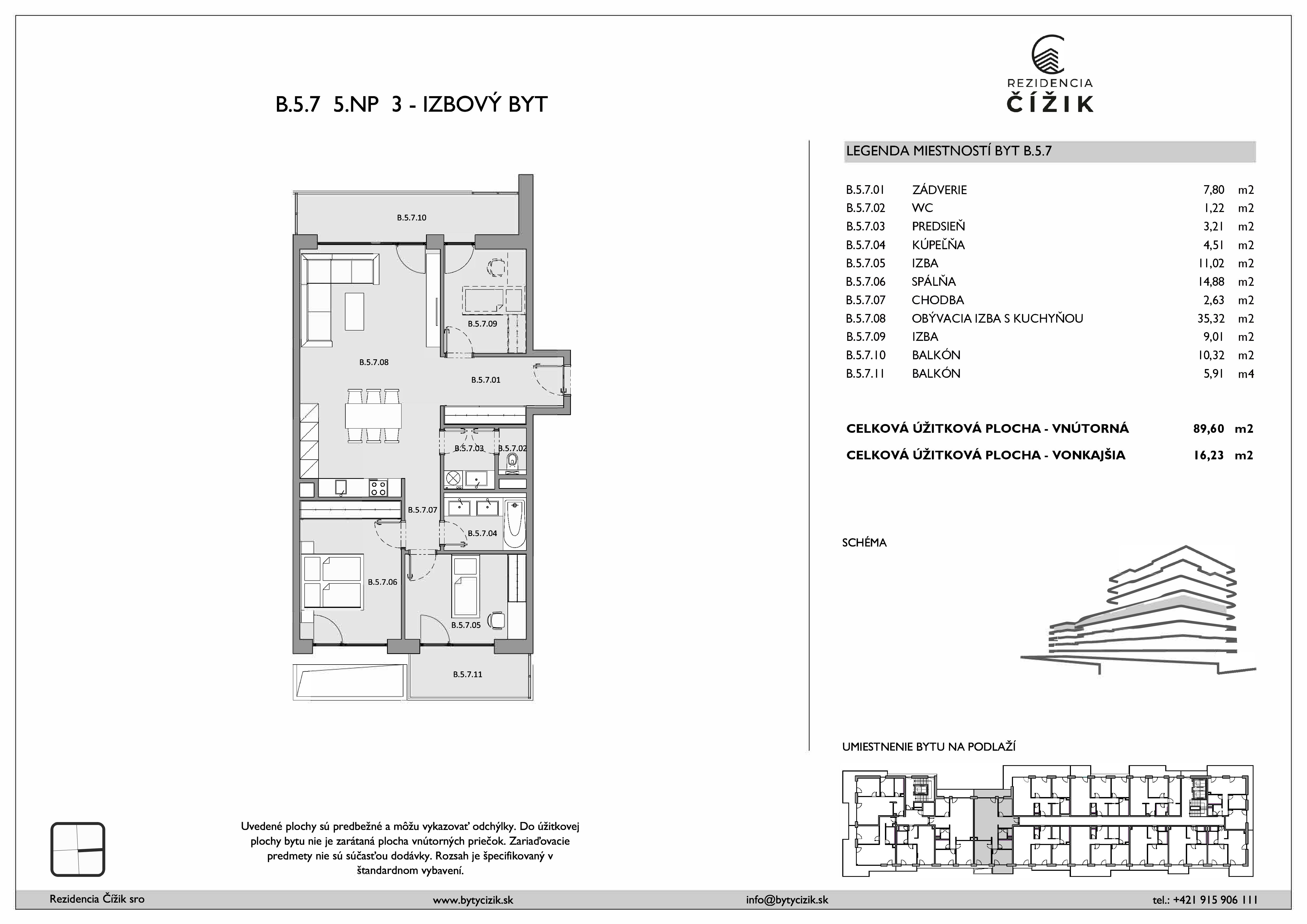
byt:
Mesto / Obec:
Typ:
3-izbový byt
Rozloha:
89.6 m²
Balkón:
16.23 m²
Cena:
394 990 €
Dostupnosť:
voľný
Moja Nehnuteľnosť
Profesionálna kalkulačka pre investície do nehnuteľností
Rezidencia Čížik - B.5.7 - Pôdorys
zdroj: https://bytycizik.sk/priestory/B.5.7