flatscraper - logo
Galandov majer
Galandov majer - map
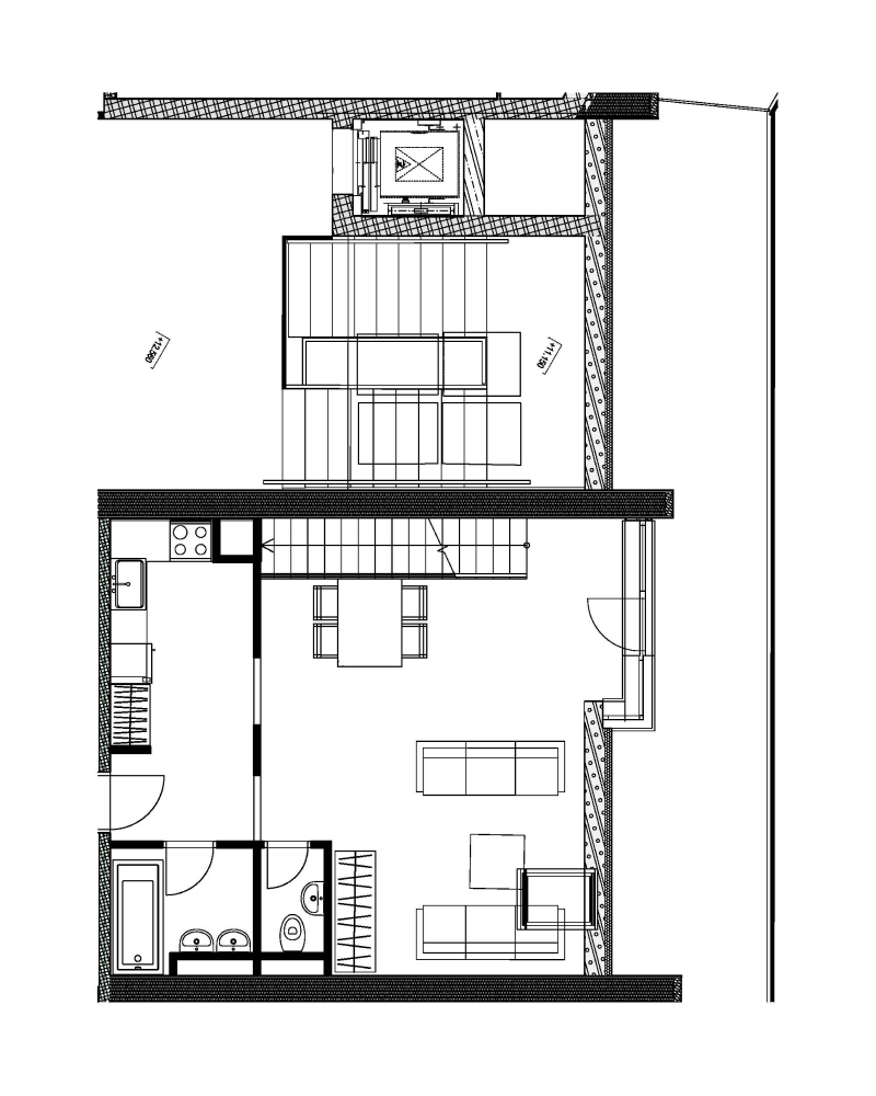
byt:
Projekt:
Mesto / Obec:
Typ:
2-izbový byt
Poschodie:
5.NP
Rozloha:
95.98 m²
Cena:
177 500 €
Dostupnosť:
voľný
Moja Nehnuteľnosť
Profesionálna kalkulačka pre investície do nehnuteľností
Galandov majer - K35.5.1 - PôdorysGalandov majer - K35.5.1 - Pôdorys
zdroj: https://galandovmajer.sk/byt/k35-5-1/