flatscraper - logo
Galandov majer
Galandov majer - map
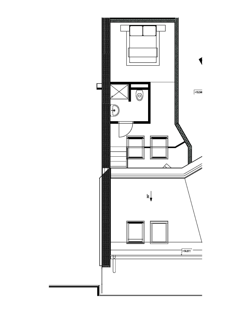
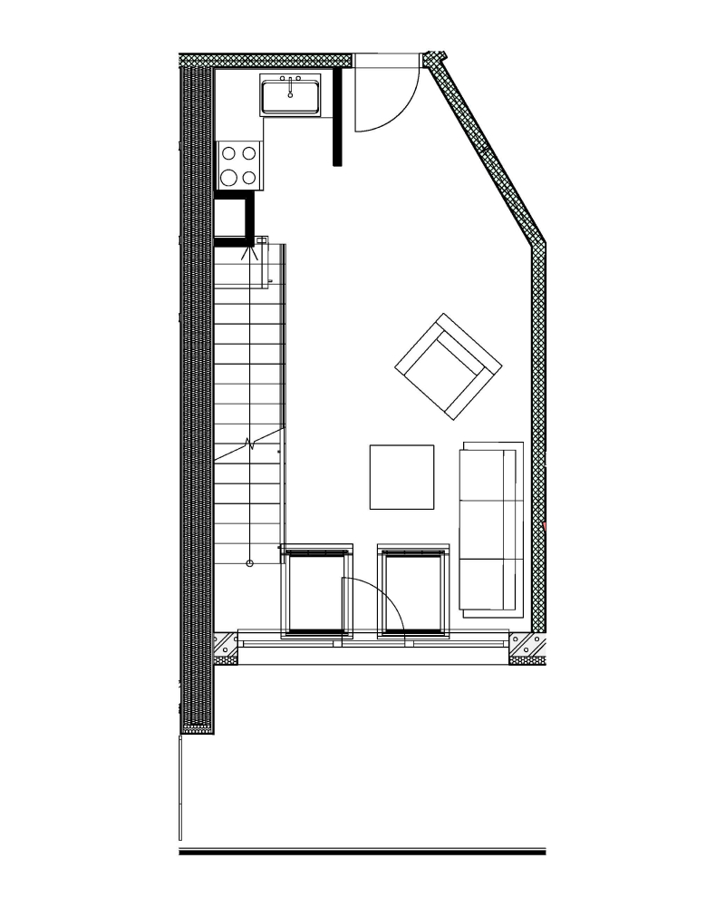
byt:
Projekt:
Mesto / Obec:
Typ:
2-izbový byt
Poschodie:
5.NP
Rozloha:
46.54 m²
Cena:
127 800 €
Dostupnosť:
voľný
Moja Nehnuteľnosť
Profesionálna kalkulačka pre investície do nehnuteľností
Galandov majer - K42.5.1 - PôdorysGalandov majer - K42.5.1 - Pôdorys
zdroj: https://galandovmajer.sk/byt/k42-5-1/