flatscraper - logo
Galandov majer
Galandov majer - map
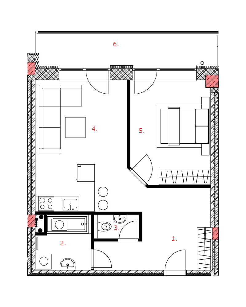
byt:
Projekt:
Mesto / Obec:
Typ:
2-izbový byt
Poschodie:
3.NP
Rozloha:
57.92 m²
Cena:
124 300 €
Dostupnosť:
voľný
Moja Nehnuteľnosť
Profesionálna kalkulačka pre investície do nehnuteľností
Galandov majer - V30.3.2 - Pôdorys
zdroj: https://galandovmajer.sk/byt/v30-3-2/