flatscraper - logo
Kaštieľ Bocian
Kaštieľ Bocian - map
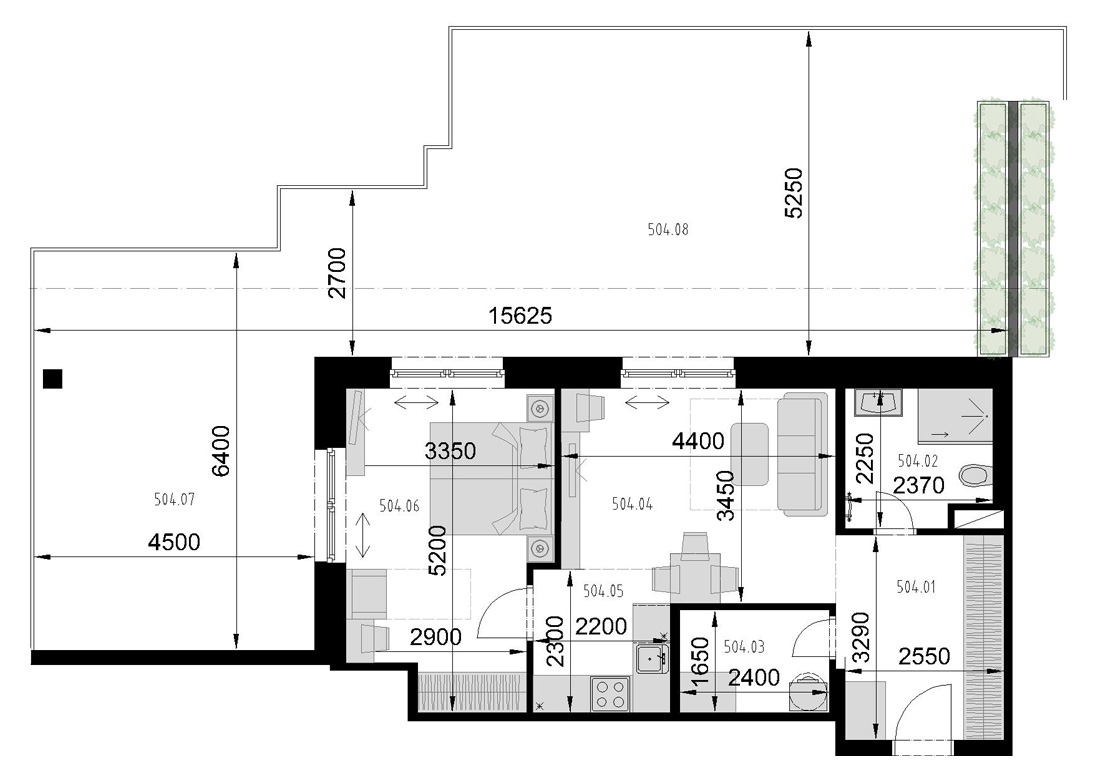
byt:
504
Projekt:
Mesto / Obec:
Typ:
2-izbový byt
Rozloha:
135.83 m²
Cena:
379 981 €
Dostupnosť:
voľný
Kaštieľ Bocian - 504 - Pôdorys
zdroj: https://kastielbocian.sk/apartman/504/