Chaty Na Zjazdovke
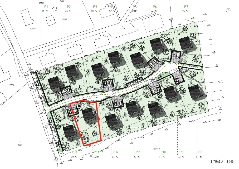
Chaty Na Zjazdovke - map
Oficiálna stránka domu
dom
Chata 13
budova
-
mesto / obec
typ
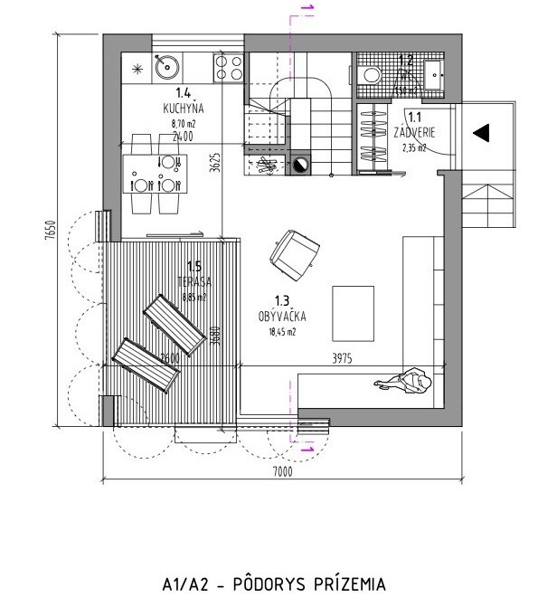
3-izbový dom
interiér
104.NP
284 318 €
voľný
Vypočítať návratnosť