Anna Park
Anna Park - map
Oficiálna stránka projektu
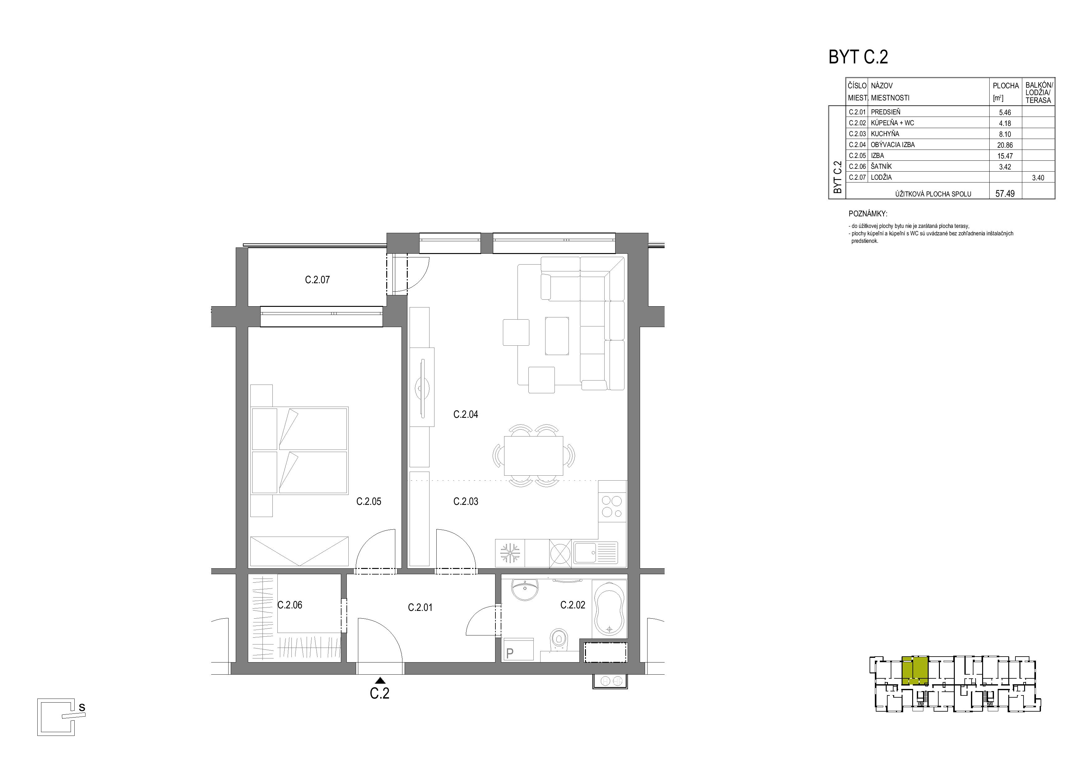
byt
C.2
budova
Sq36 03
projekt
mesto / obec
typ
2-izbový byt
poschodie
2.NP
interiér
57.NP
exteriér
3.4 m²
161 990 €
voľný
Vypočítať návratnosť