Anna Park
Anna Park - map
Oficiálna stránka projektu
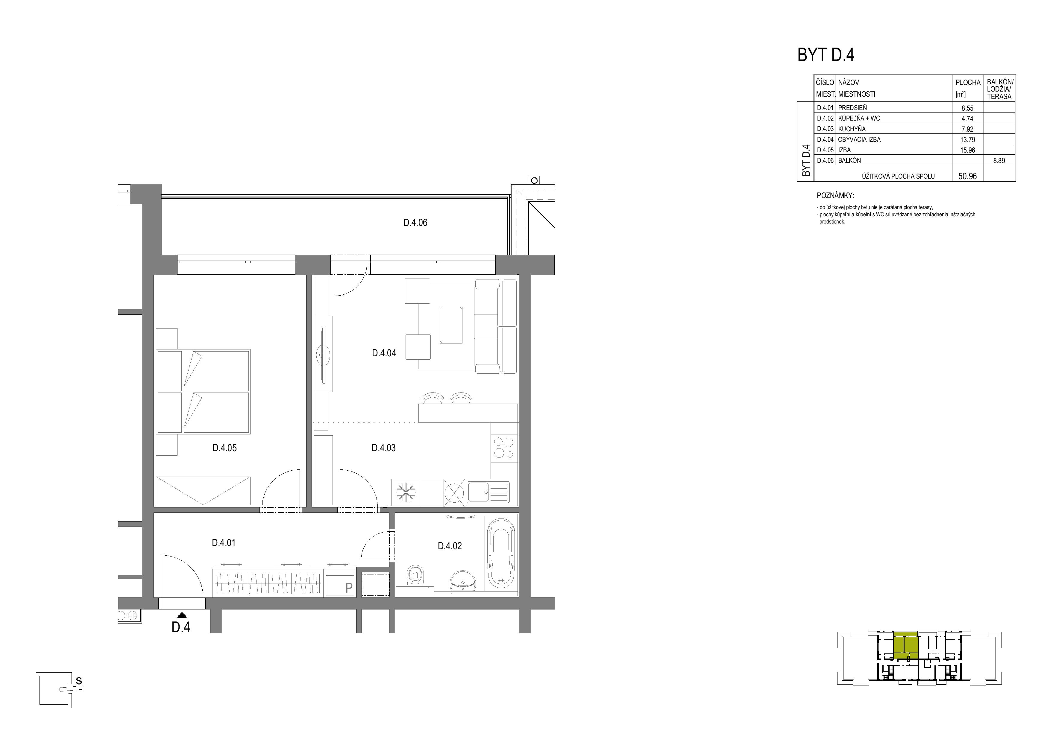
byt
D.4
budova
Sq36 03
projekt
mesto / obec
typ
2-izbový byt
poschodie
najvyššie
interiér
50.NP
exteriér
8.89 m²
159 990 €
voľný
Vypočítať návratnosť