Anna Park
Anna Park - map
Oficiálna stránka projektu
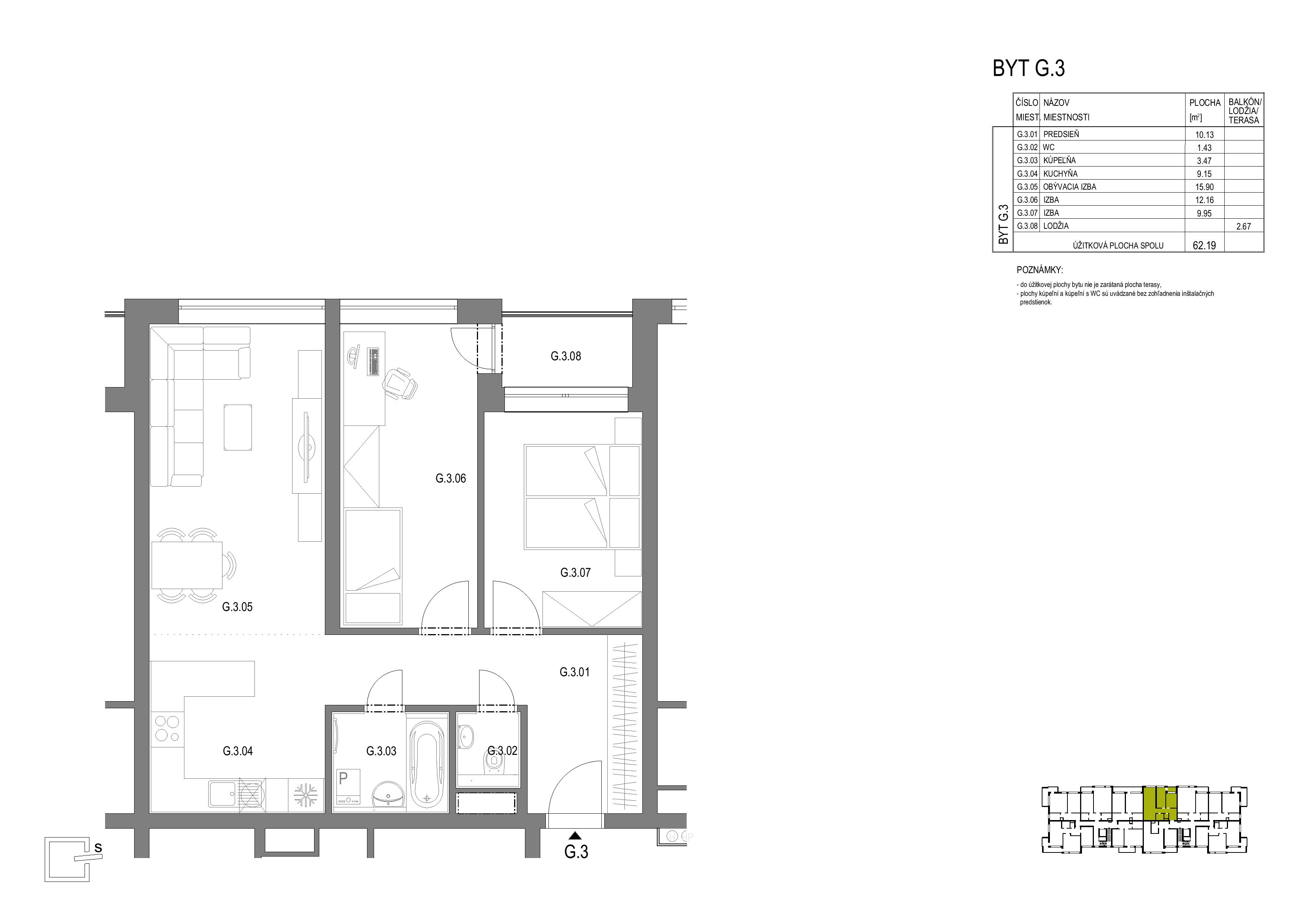
byt
G.3
budova
Sq36 03
projekt
mesto / obec
typ
3-izbový byt
poschodie
3.NP
interiér
62.NP
exteriér
2.67 m²
174 990 €
voľný
Vypočítať návratnosť