Anna Park
Anna Park - map
Oficiálna stránka projektu
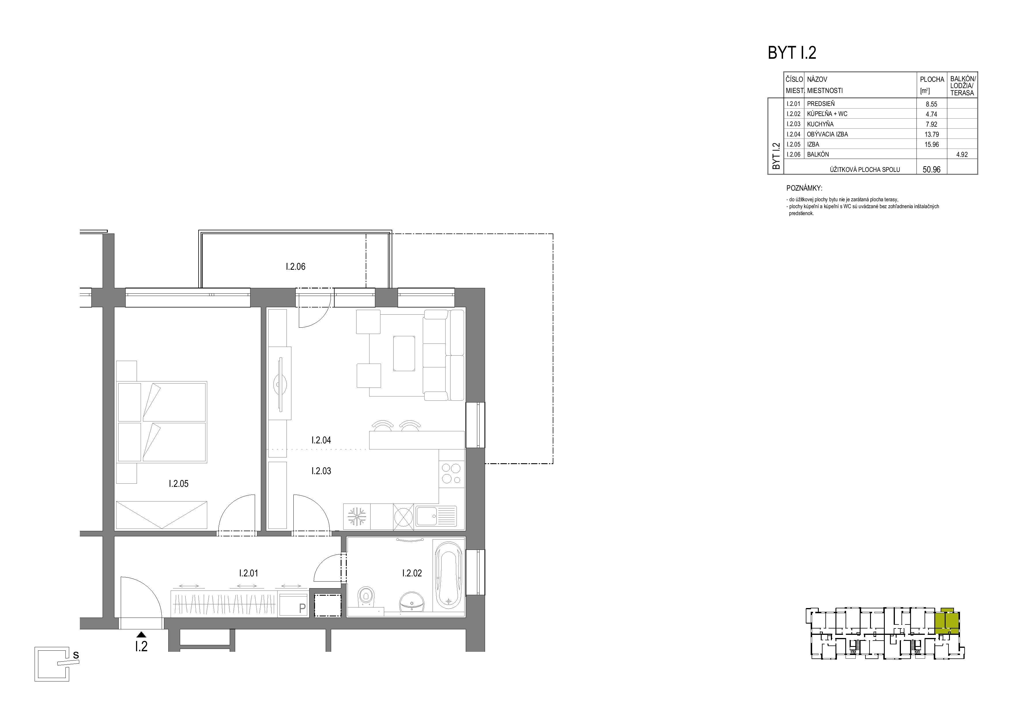
byt
I.2
budova
Sq36 03
projekt
mesto / obec
typ
2-izbový byt
poschodie
2.NP
interiér
50.NP
exteriér
4.92 m²
157 990 €
voľný
Vypočítať návratnosť