flatscraper - logo
Malé hliny
Malé hliny - map
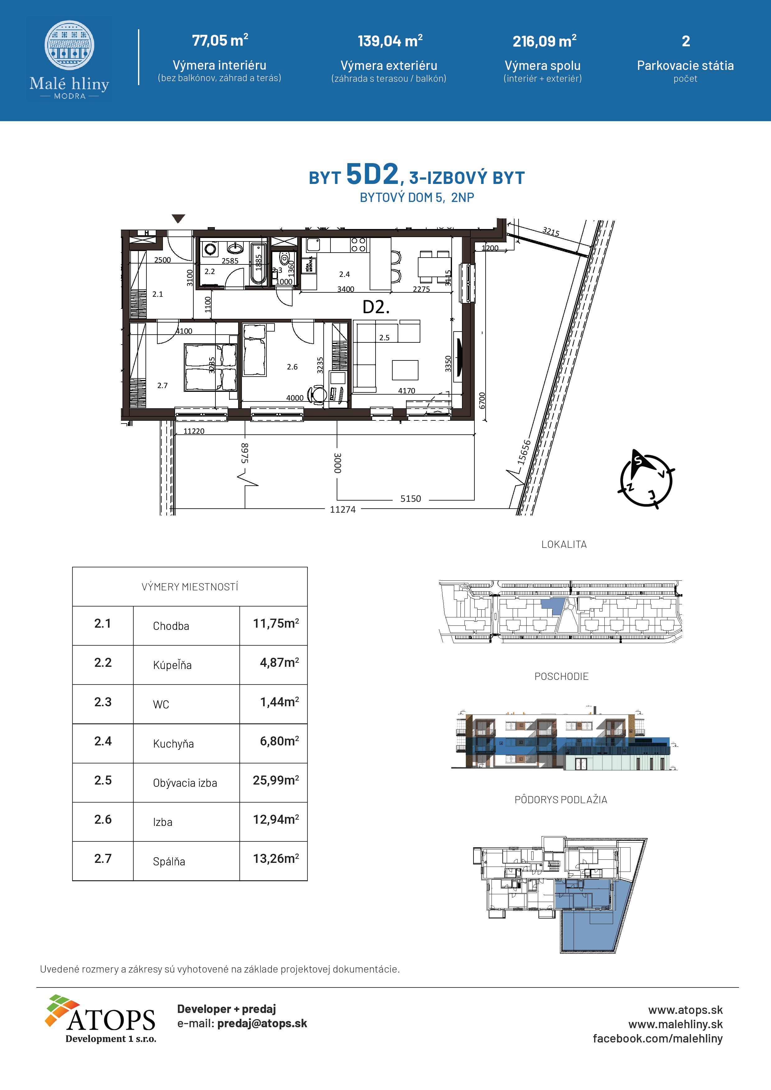
byt:
5D2
Budova:
BD 5
Projekt:
Mesto / Obec:
Typ:
3-izbový byt
Poschodie:
2.NP
Rozloha:
77.05 m²
Cena:
229 000 €
Dostupnosť:
voľný
Moja Nehnuteľnosť
Profesionálna kalkulačka pre investície do nehnuteľností
Kontakt:
Malé hliny - 5D2 - Pôdorys
zdroj: https://www.malehliny.sk/predaj-bytov/byt-5d2/