flatscraper - logo
Nové Mlynárce
Nové Mlynárce - map
byt:
E3A
Projekt:
Mesto / Obec:
Typ:
2-izbový byt
Poschodie:
3.NP
Rozloha:
58 m²
Cena:
169 990 €
Dostupnosť:
voľný
Moja Nehnuteľnosť
Profesionálna kalkulačka pre investície do nehnuteľností
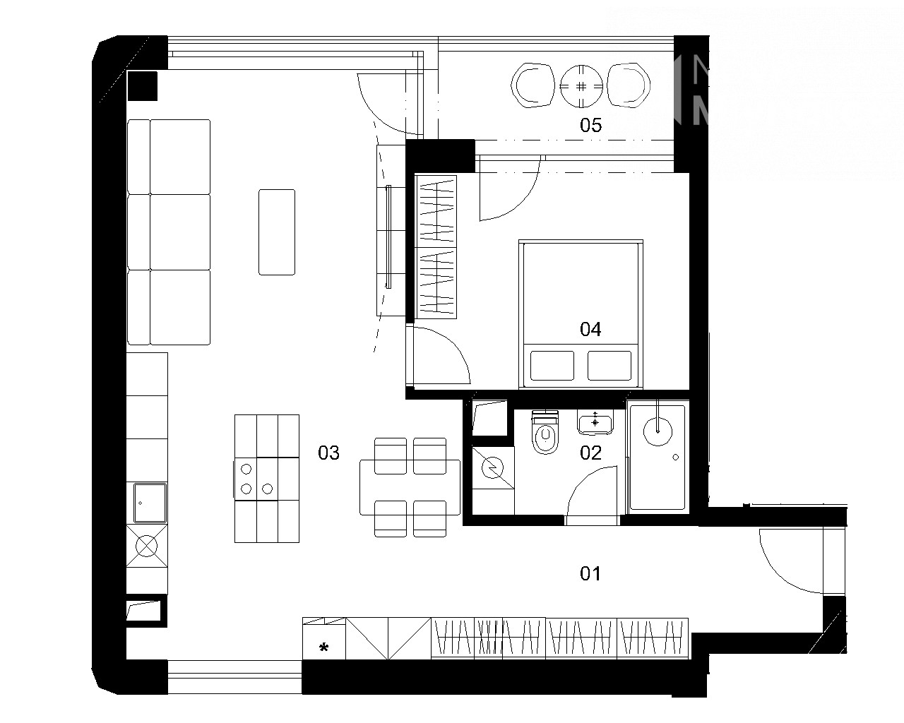
Nové Mlynárce - E3A - Pôdorys
zdroj: https://www.novemlynarce.sk/nehnutelnost/1074-e3a-2-izbovy-byt-nove-mlynarce