flatscraper - logo
Blue Wave Riverside
Blue Wave Riverside - map
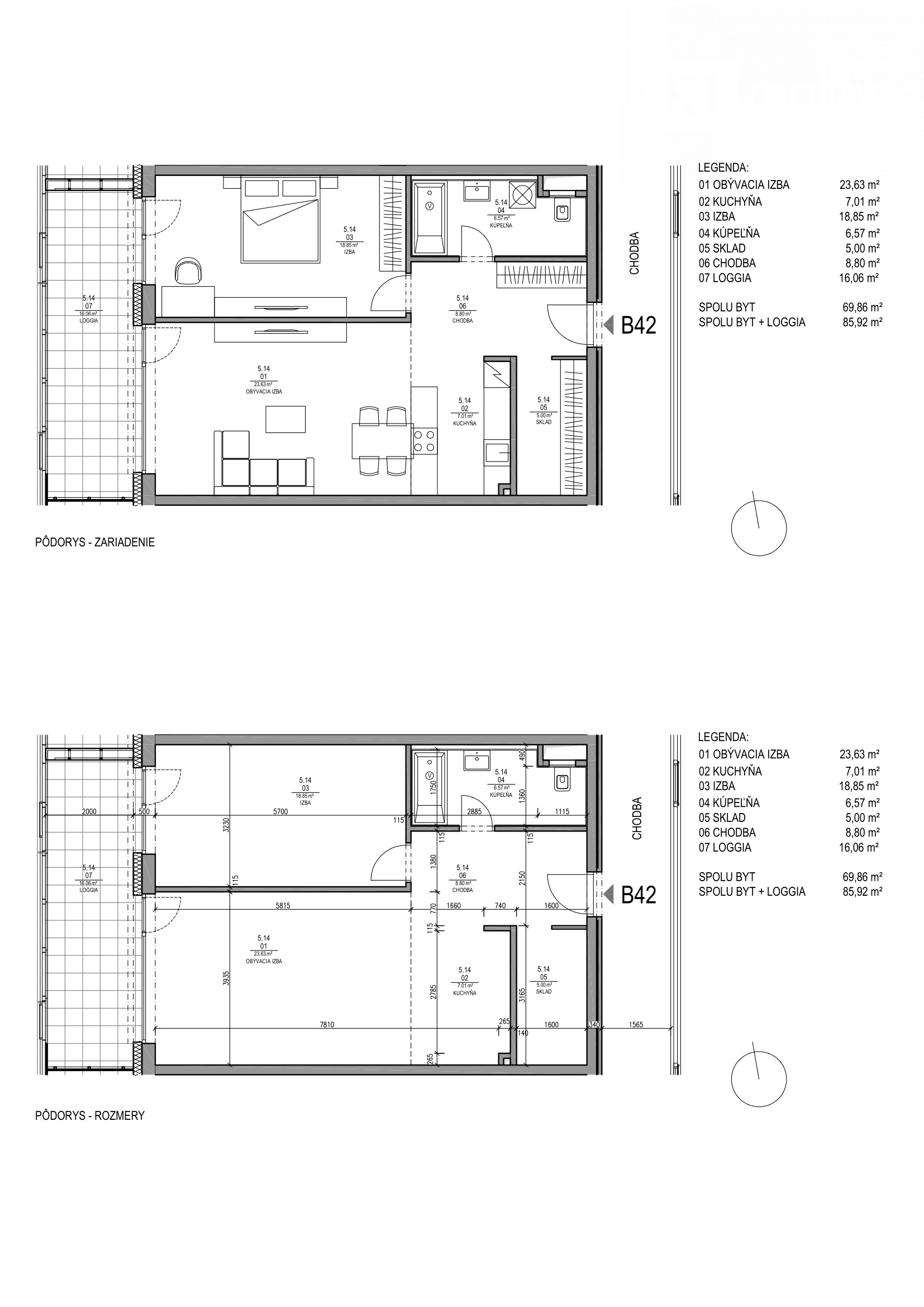
byt:
B42
Mesto / Obec:
Typ:
2-izbový byt
Poschodie:
5.NP
Rozloha:
69.37 m²
Terasa:
16.06 m²
Cena:
257 000 €
Dostupnosť:
voľný
Moja Nehnuteľnosť
Profesionálna kalkulačka pre investície do nehnuteľností
Blue Wave Riverside - B42 - Pôdorys
zdroj: https://www.bosen.sk/nehnutelnost/12295215-bosen-bluewave-2-izbovy-byt-s-krasnym-vyhladom-a5-42-banka-piestany-85-52-m2