Bell Residence
Bell Residence - map
Oficiálna stránka bytu
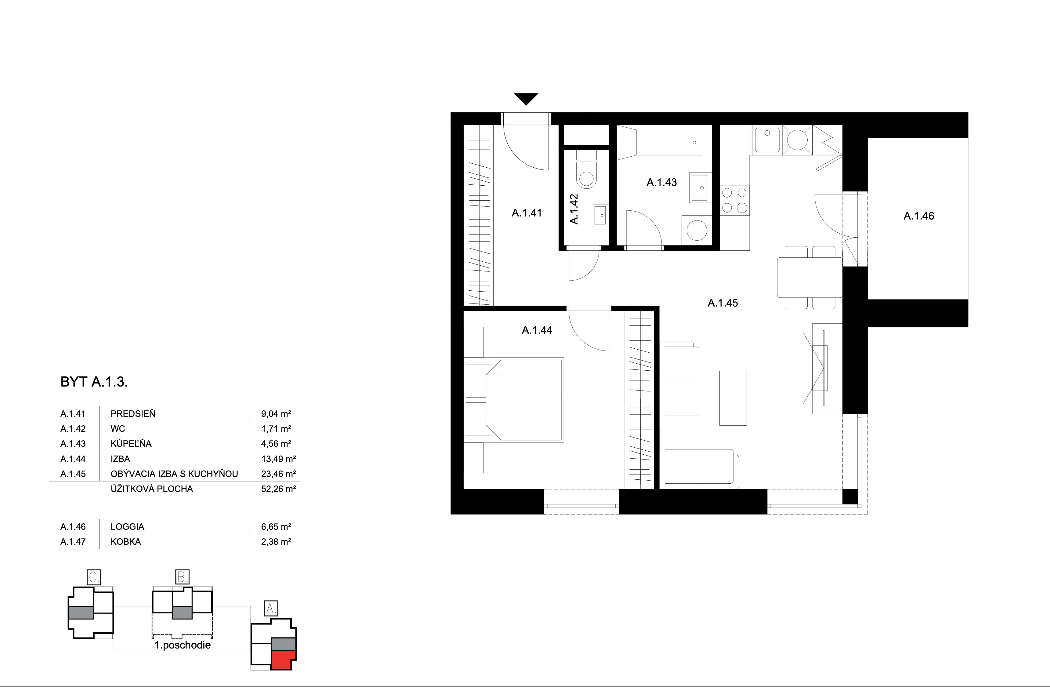
byt
A.1.3
budova
A
projekt
mesto / obec
typ
2-izbový byt
poschodie
1.NP
interiér
52.NP
179 000 €
voľný
Vypočítať návratnosť