Bell Residence
Bell Residence - map
Oficiálna stránka bytu
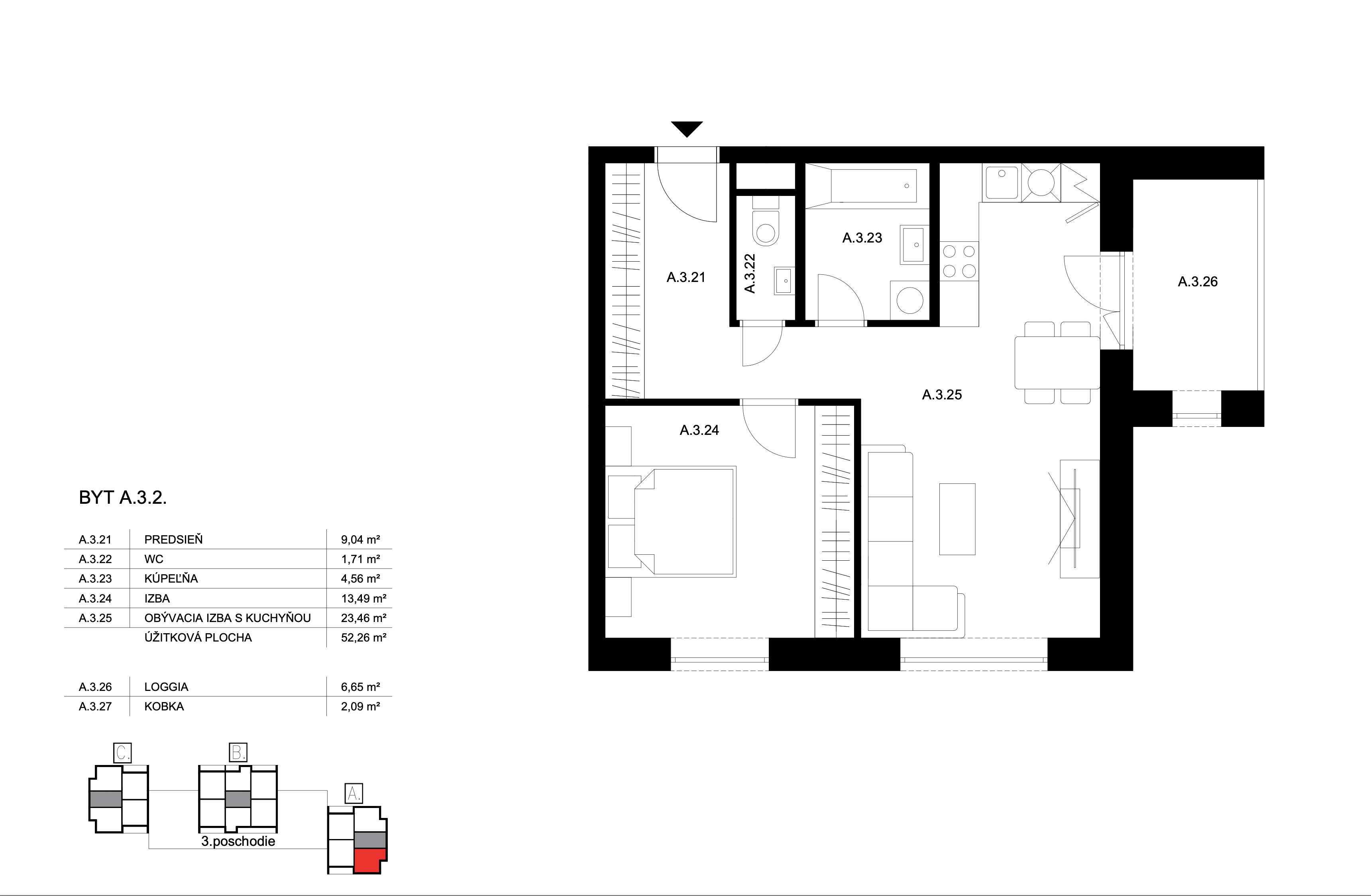
byt
A.3.2
budova
A
projekt
mesto / obec
typ
2-izbový byt
poschodie
3.NP
interiér
52.NP
183 082 €
voľný
Vypočítať návratnosť