flatscraper - logo
Bell Residence
Bell Residence - map
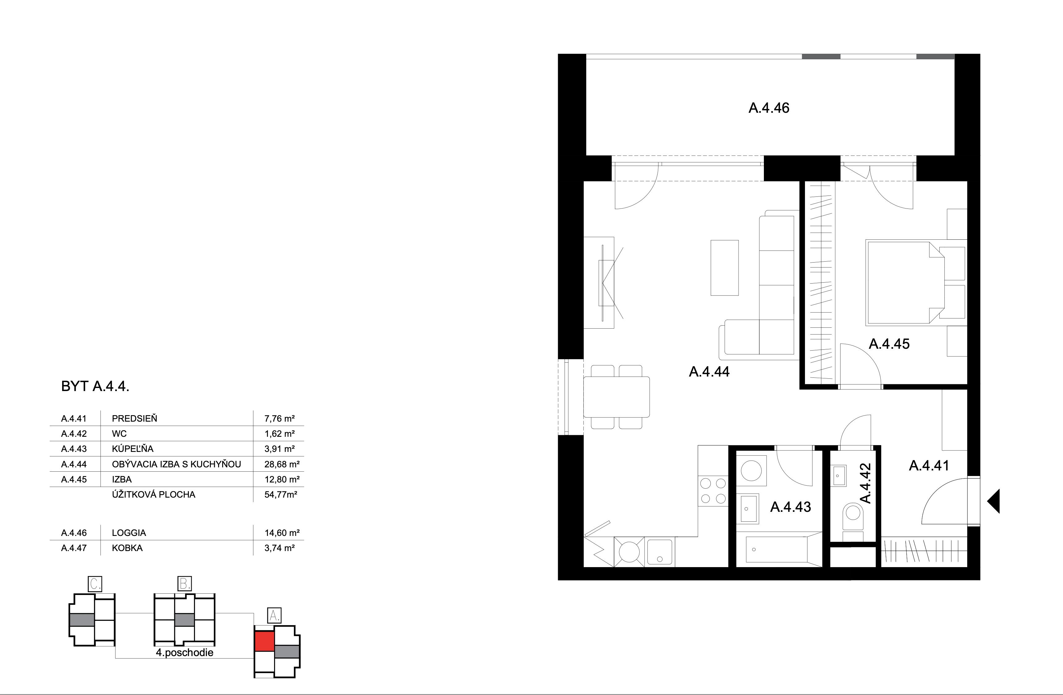
byt:
Budova:
A
Projekt:
Mesto / Obec:
Typ:
2-izbový byt
Poschodie:
4.NP
Rozloha:
54.77 m²
Cena:
206 300 €
Dostupnosť:
voľný
Moja Nehnuteľnosť
Profesionálna kalkulačka pre investície do nehnuteľností
Bell Residence - A.4.4 - Pôdorys
zdroj: https://bellresidence.sk/byt?flat=A-4-4