Bell Residence
Bell Residence - map
Oficiálna stránka bytu
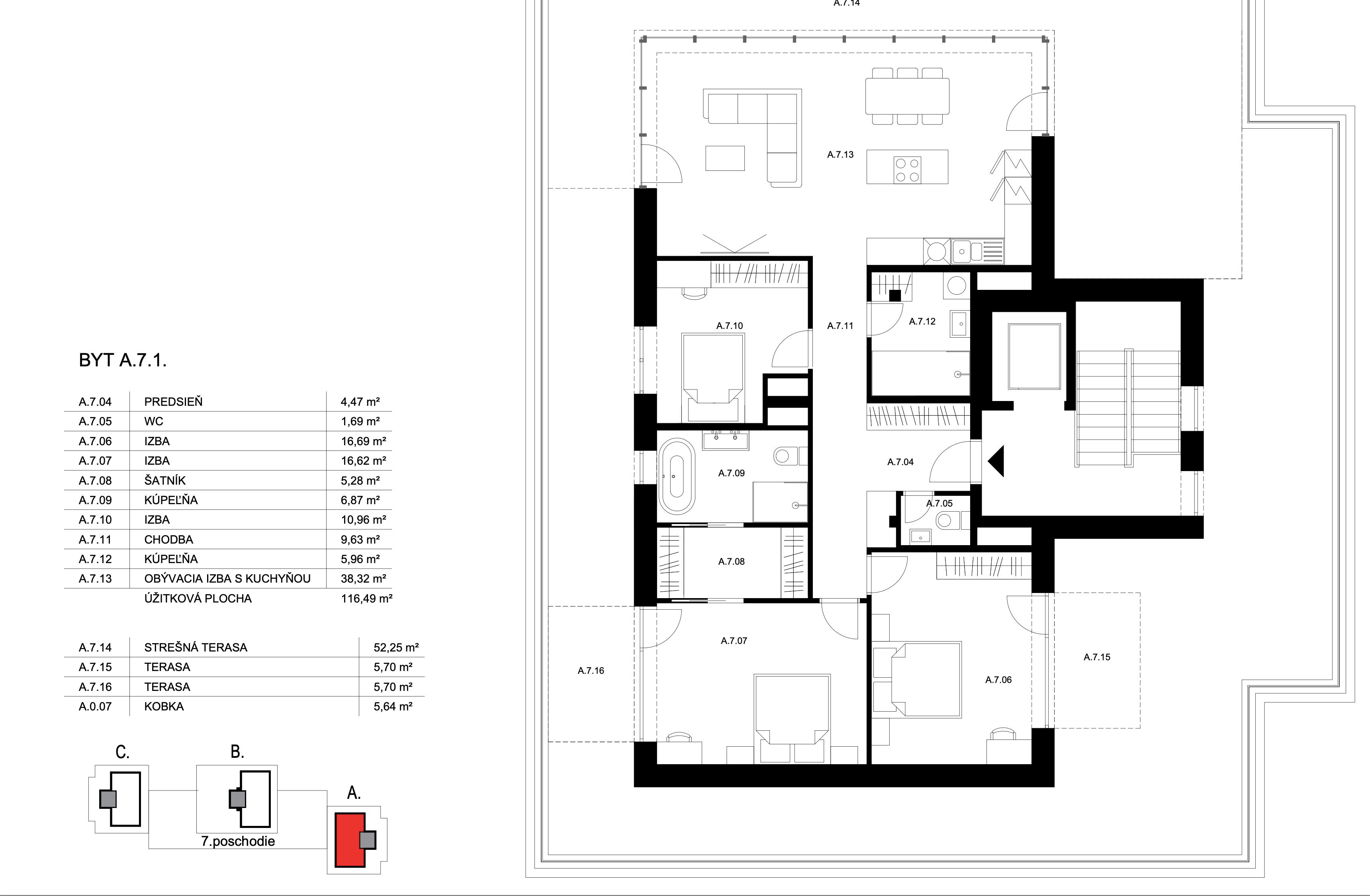
byt
A.7.1
budova
A
projekt
mesto / obec
typ
4-izbový byt
poschodie
7.NP
interiér
116.NP
-
voľný