flatscraper - logo
Bell Residence
Bell Residence - map
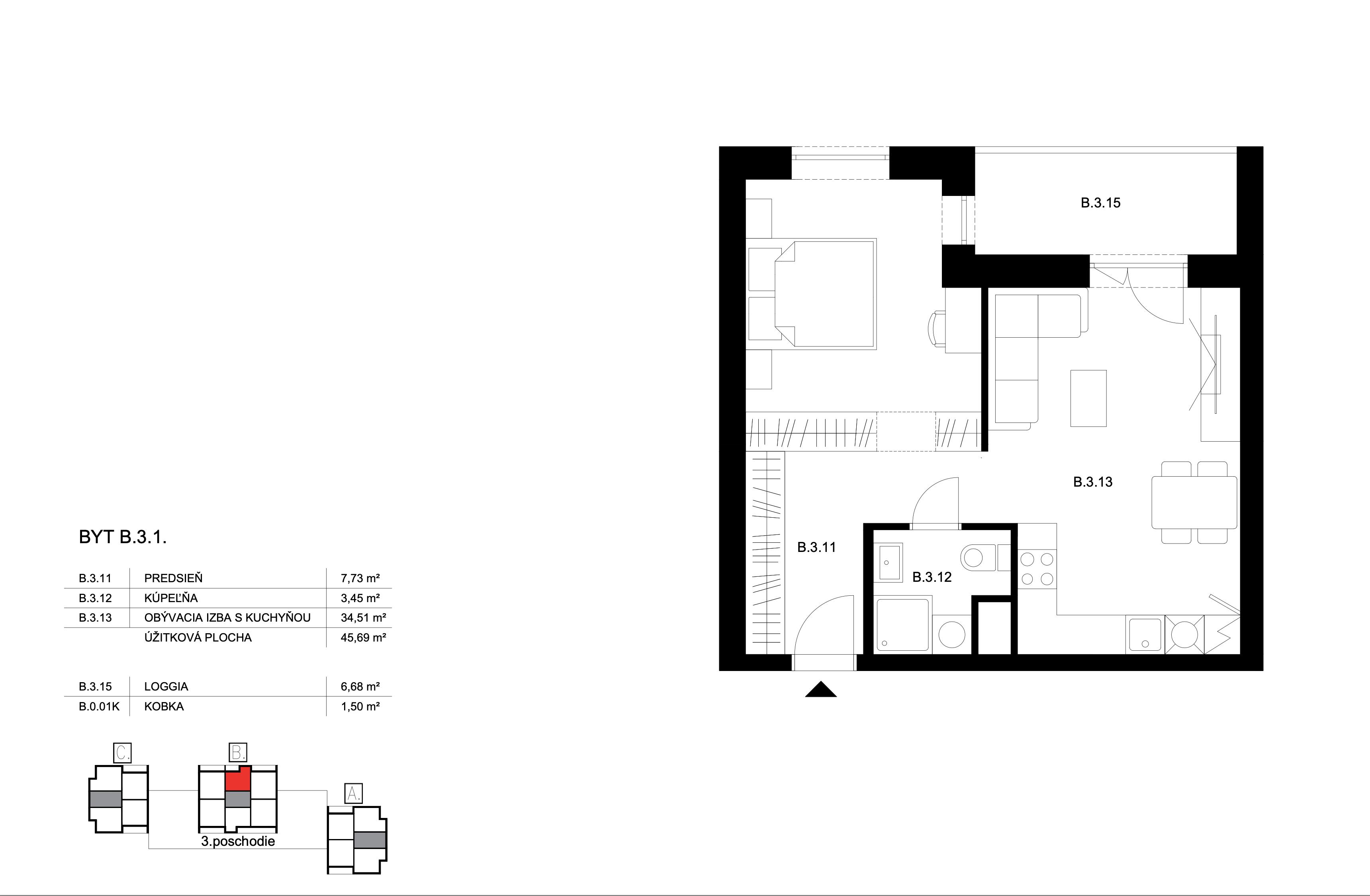
byt:
Budova:
B
Projekt:
Mesto / Obec:
Typ:
1-izbový byt
Poschodie:
3.NP
Rozloha:
45.51 m²
Cena:
163 000 €
Dostupnosť:
voľný
Moja Nehnuteľnosť
Profesionálna kalkulačka pre investície do nehnuteľností
Bell Residence - B.3.1 - Pôdorys
zdroj: https://bellresidence.sk/byt?flat=B-3-1