Bell Residence
Bell Residence - map
Oficiálna stránka bytu
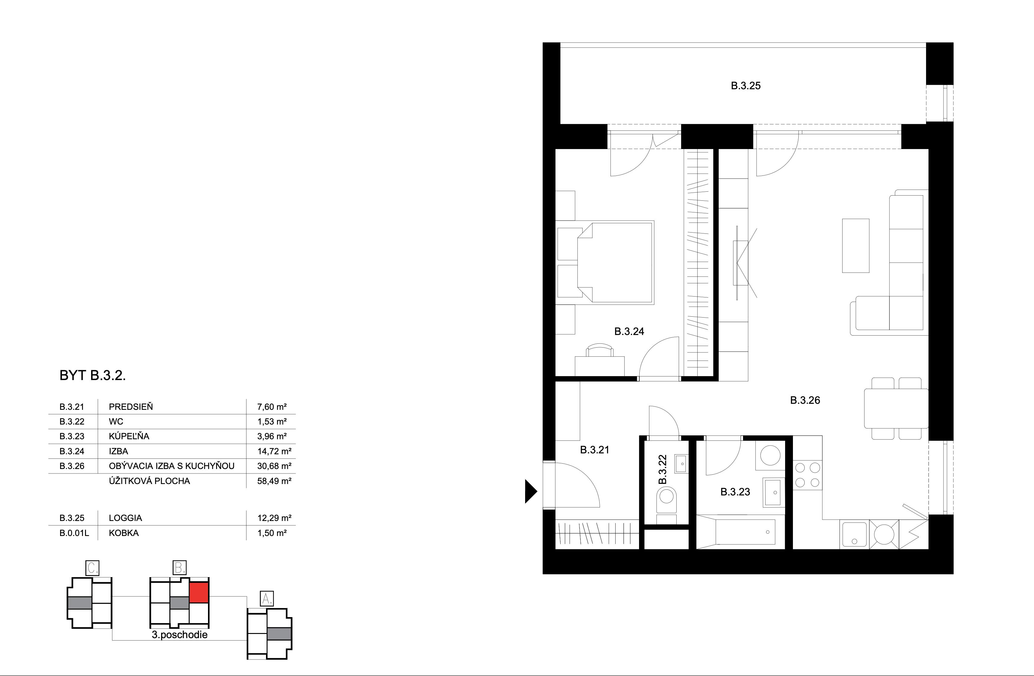
byt
B.3.2
budova
B
projekt
mesto / obec
typ
2-izbový byt
poschodie
3.NP
interiér
58.NP
213 700 €
voľný
Vypočítať návratnosť