flatscraper - logo
Hríby
Hríby - map
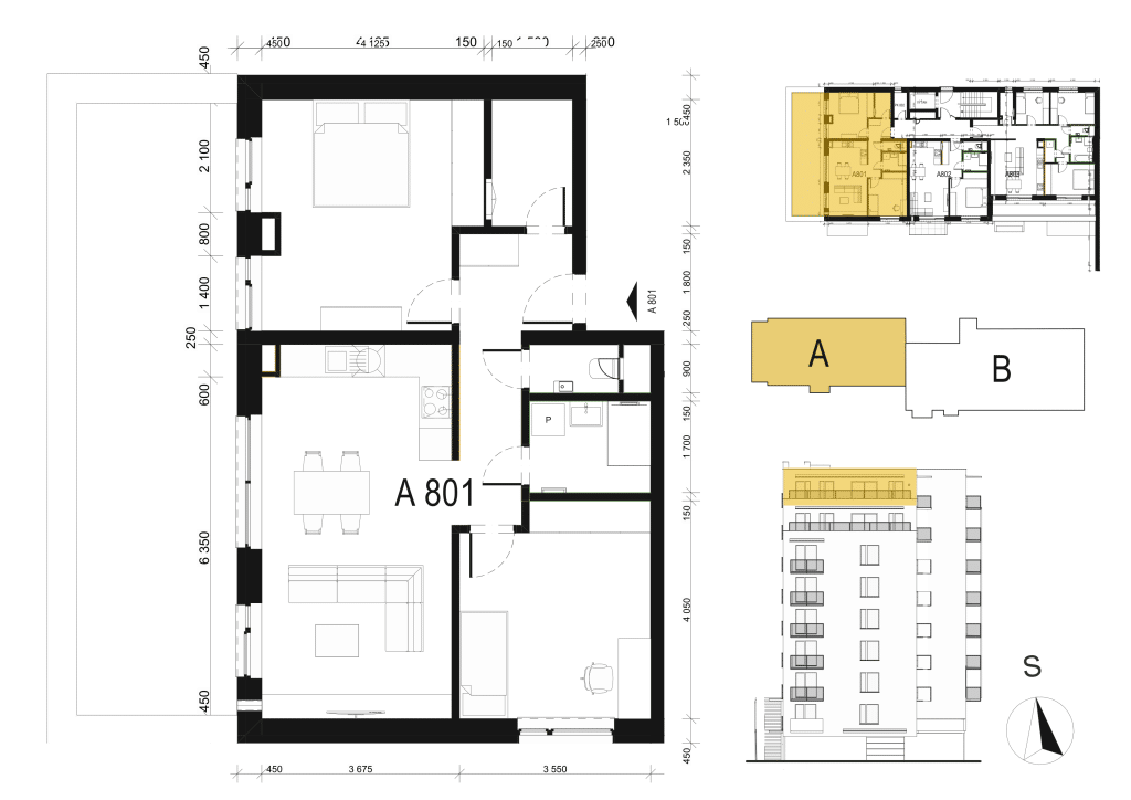
byt:
Projekt:
Mesto / Obec:
Typ:
3-izbový byt
Poschodie:
8.NP
Rozloha:
105.32 m²
Terasa:
34.2 m²
Cena:
247 253 €
Dostupnosť:
voľný
Moja Nehnuteľnosť
Profesionálna kalkulačka pre investície do nehnuteľností
Hríby - A801 - Pôdorys
zdroj: https://www.bytyhriby.sk/byt/trojizbovy-byt-ruzomberok-a801/