Hríby
Hríby - map
Oficiálna stránka bytu
byt
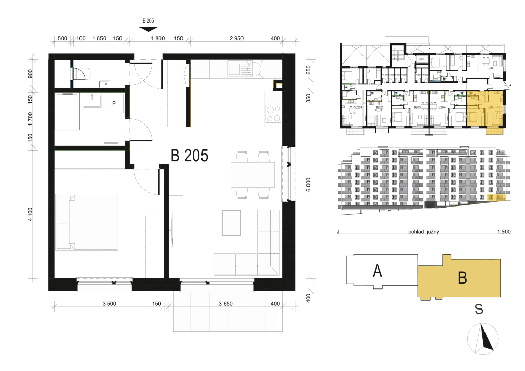
B205
budova
-
projekt
mesto / obec
typ
2-izbový byt
poschodie
2.NP
plocha
56.NP
balkón
4.69 m²
145 255 €
voľný
Vypočítať návratnosť