Hríby
Hríby - map
Oficiálna stránka bytu
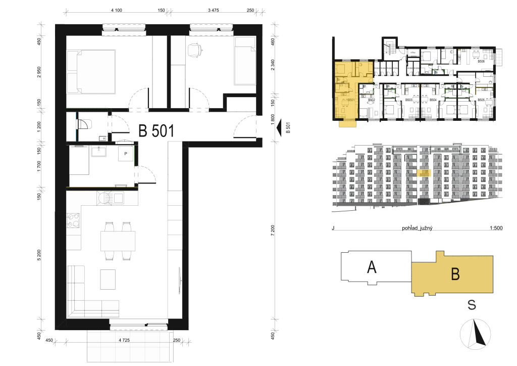
byt
B501
budova
-
projekt
mesto / obec
typ
3-izbový byt
poschodie
5.NP
plocha
71.NP
balkón
4.7 m²
212 900 €
voľný
Vypočítať návratnosť