Hríby
Hríby - map
Oficiálna stránka bytu
byt
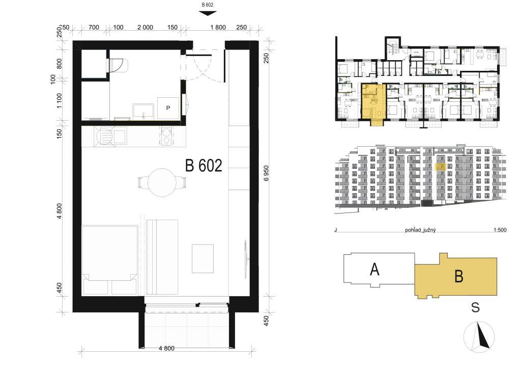
B602
budova
-
projekt
mesto / obec
typ
1-izbový byt
poschodie
6.NP
plocha
38.NP
balkón
3.92 m²
109 155 €
voľný
Vypočítať návratnosť