flatscraper - logo
Hríby
Hríby - map
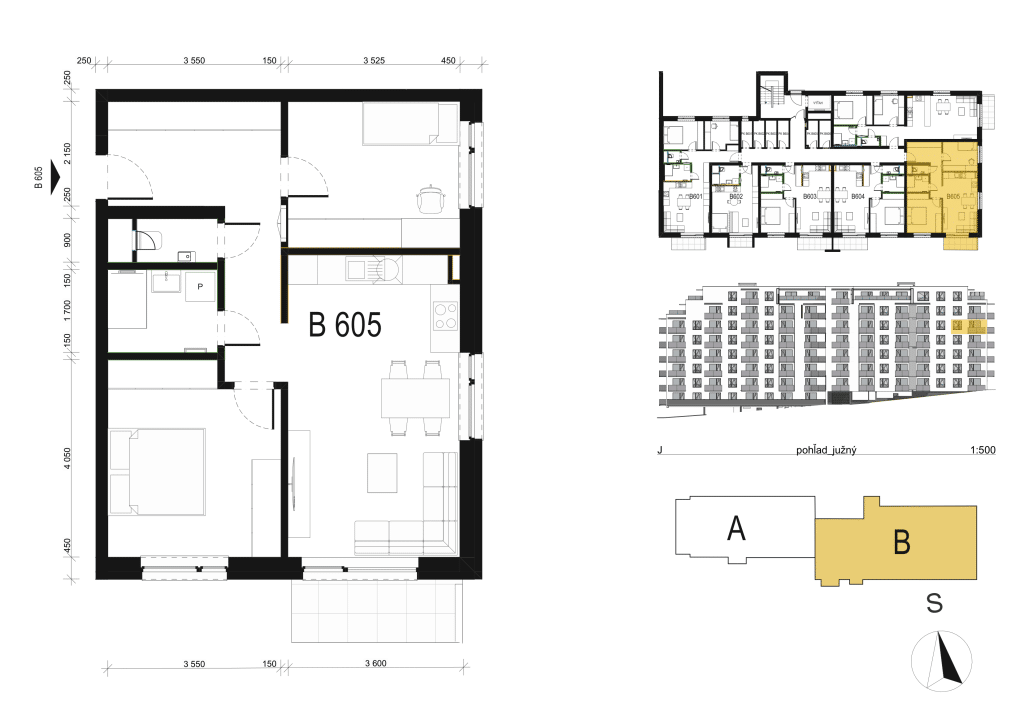
byt:
Projekt:
Mesto / Obec:
Typ:
3-izbový byt
Poschodie:
6.NP
Rozloha:
71.15 m²
Balkón:
4.69 m²
Cena:
179 353 €
Dostupnosť:
voľný
Moja Nehnuteľnosť
Profesionálna kalkulačka pre investície do nehnuteľností
Hríby - B605 - Pôdorys
zdroj: https://www.bytyhriby.sk/byt/trojizbovy-byt-ruzomberok-b605/