Zelené údolie
Zelené údolie - map
Oficiálna stránka bytu
byt
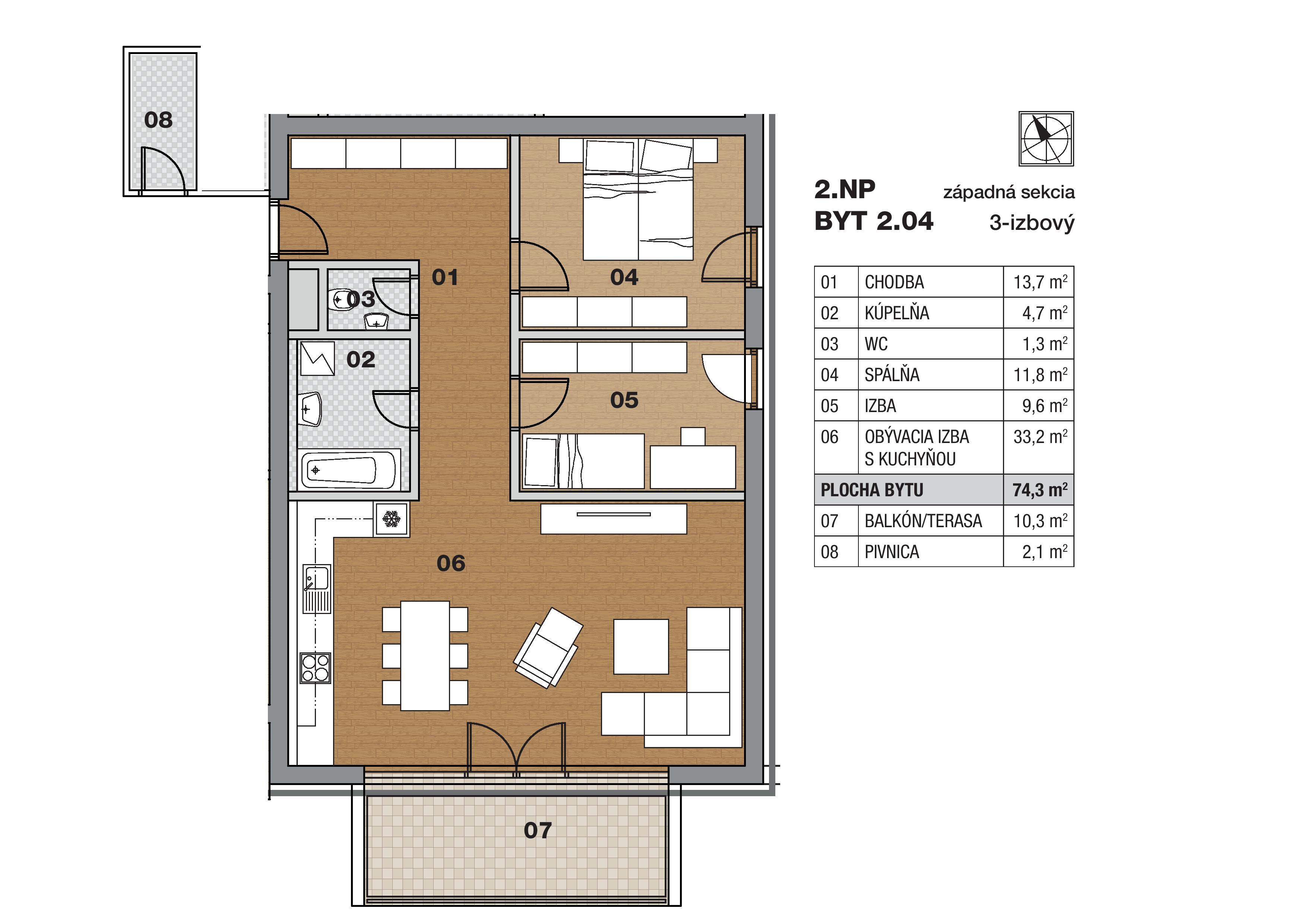
A 2.04
budova
-
projekt
mesto / obec
typ
3-izbový byt
poschodie
2.NP
interiér
74.NP
exteriér
10.3 m²
204 000 €
voľný
Vypočítať návratnosť