Vily nad Slatinou
Vily nad Slatinou - map
Oficiálna stránka bytu
byt
1. poschodie
budova
Vila Avantgarde
mesto / obec
typ
byt
poschodie
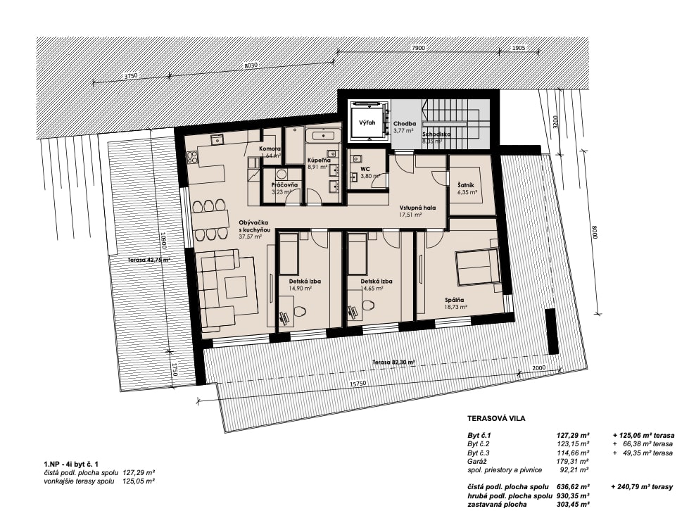
1.NP
interiér
127.NP
exteriér
125.06 m²
-
voľný