Vily nad Slatinou
Vily nad Slatinou - map
Oficiálna stránka bytu
byt
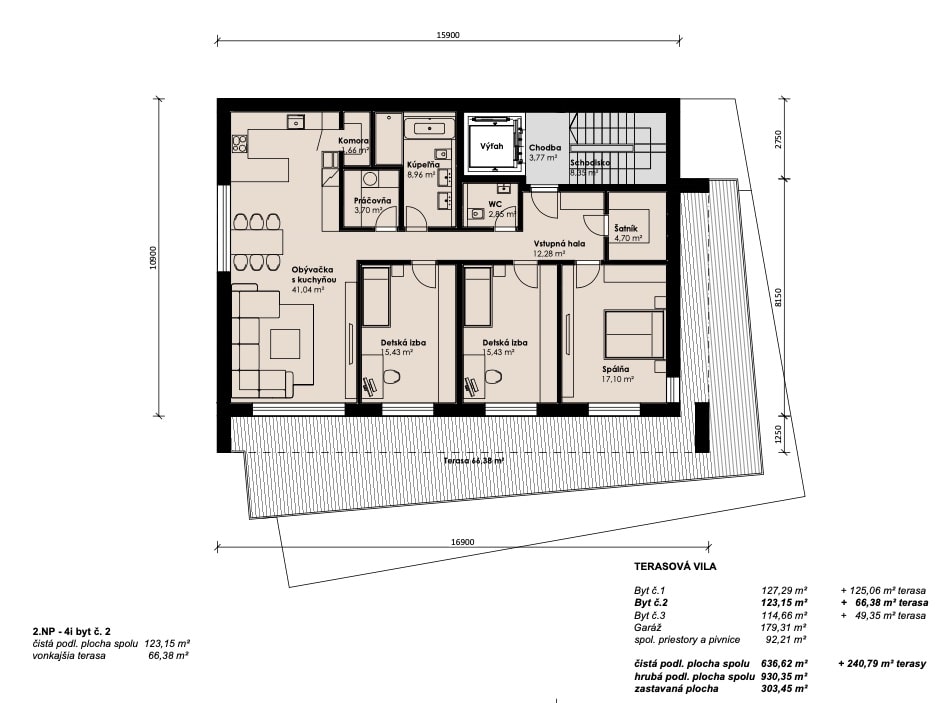
2. poschodie
budova
Vila Avantgarde
mesto / obec
typ
byt
poschodie
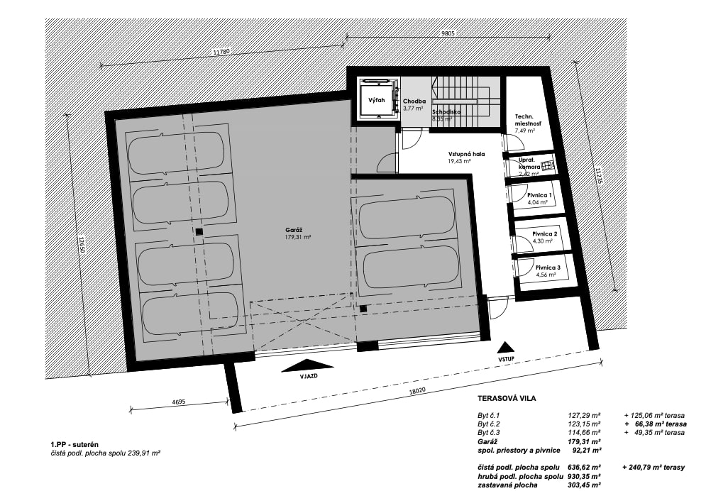
2.NP
interiér
123.NP
exteriér
66.38 m²
-
voľný