Vily nad Slatinou
Vily nad Slatinou - map
Oficiálna stránka bytu
byt
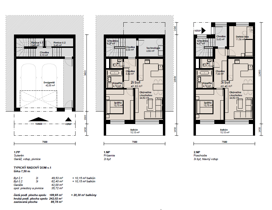
21
budova
Vila Moderna
mesto / obec
typ
3-izbový byt
interiér
61.NP
-
voľný